Kodanikult saabus terviseamet.ee veebivormi kaudu vastused:
Veebivorm: Taotlus hinnangu väljastamiseks sotsiaalteenuse osutajale tervisekaitsenõuetele vastavuse kohta
Vastamise aeg: Esmaspäev, 2. september 2024 - 8:20
Vastused:
| TEENUS: | lapsehoiuteenus |
| Sotsiaalse rehabilitatsiooni teenus on: |
|
| TEENUS(jätk): | |
| Erihoolekandeteenuse liik: | |
| TEENUS(jätk2): | väljaspool kodu osutatav üldhooldusteenus |
| ==TAOTLEJA KONTAKTANDMED== | |||
| Taotleja nimi: | Mermad OÜ | ||
| Taotleja juriidiline aadress/telefon/e-post: | Kõrve 1a, Kõrveküla, 60512, II korrus, 53889833, [email protected] | ||
| Taotleja või kontaktisiku kontaktandmed: | 53889833, [email protected] | ||
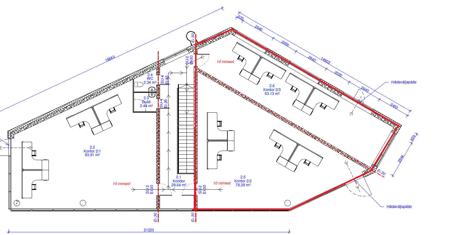
| Teenuse osutamise koha aadress: | Kõrve 1a, Kõrveküla, 60512, II korrus | ||
| Planeeritud kohtade arv: | 20 | ||
| TÄITA LAPSEHOIUTEENUSE PUHUL (vali sobiv): | |
| Mööbliga katmata vaba põrandapind ruumis: | |
| TÄITA LAPSEHOIUTEENUSE PUHUL2: | mängitakse ja magatakse eraldi ruumides |
| Vaba põrandapind mänguruumis: | |
| Vaba põrandapind magamisruumis: |
| == TAOTLUSE ESITAJA KINNITAB, ET NÕUSTUB ASJAKOHASE KONTROLLTOIMINGU LÄBIVIIMISEGA == | |||
| Taotluse esitamise kuupäev: | 2. september 2024 | ||
| Taotluse esitaja nimi: | Merili Madissoo | ||
Lisatud failid: On manuses