Sisestuse kuupäev R, 12/12/2025 - 09:47
Sisestaja: vportal_rest
Sisestatud veebivormi info:
TEENUSigapäevaelu toetamise teenus
Taotleja nimi (asutuse nimetus või füüsilise isiku ees- ja perekonnanimi, registrikood/isikukood)Mittetulundusühing Õnneonn
Taotleja juriidiline aadress, telefon, e-postAgari, Mõnnuste küla, 93512 Saaremaa vald, Saare maakond
Taotleja või kontaktisiku kontaktandmed[email protected] 53480703
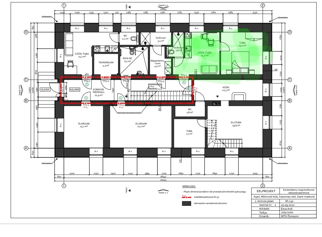
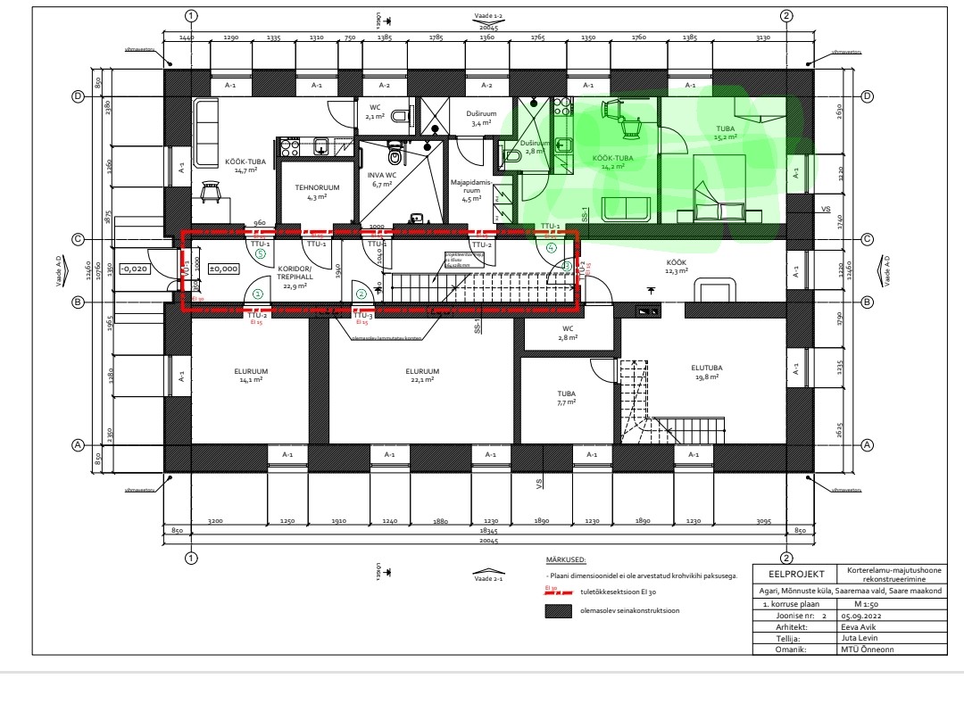
Teenuse osutamise koha aadressAgari 4, Mõnnuste küla, 93512 Saaremaa vald
Planeeritud kohtade arv20
TAOTLUSE ESITAJA KINNITAB, ET NÕUSTUB ASJAKOHASE KONTROLLTOIMINGU LÄBIVIIMISEGAJah
Taotluse esitamise kuupäev2025-12-11
Taotluse esitaja nimiJuta Levin
Teenuse osutamiseks kasutatavate ruumide projekt/plaan, kus näidatud projektikohane pindala ja teenuse saajate arv