| Dokumendiregister | Transpordiamet |
| Viit | 9.1-3/25/21316-1 |
| Registreeritud | 18.12.2025 |
| Sünkroonitud | 19.12.2025 |
| Liik | Sissetulev kiri |
| Funktsioon | 9.1 Taristu korrashoiu korraldamine |
| Sari | 9.1-3 Teehoolduse alane kirjavahetus |
| Toimik | 9.1-3/2025 |
| Juurdepääsupiirang | Avalik |
| Juurdepääsupiirang | |
| Adressaat | Tapa Vallavalitsus |
| Saabumis/saatmisviis | Tapa Vallavalitsus |
| Vastutaja | Gendra Melts (Users, Teehoiuteenistus, Ida osakond, Korrashoiu ja liikluskorralduse üksus) |
| Originaal | Ava uues aknas |
Tervist
Palume kooskõlastust infotahvlite (linna kaart) paigutamiseks järgmistesse asukohtadesse munitsipaalkinnistutel Tapa linna läbivate riigiteede ääres.
Fotod asukohtadest ning koordinaadid lisatud manustena käesolevale kirjale.
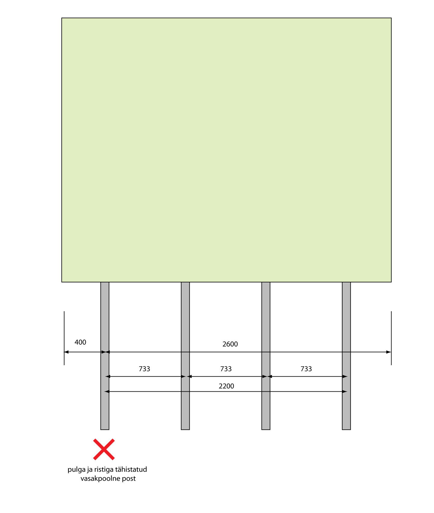
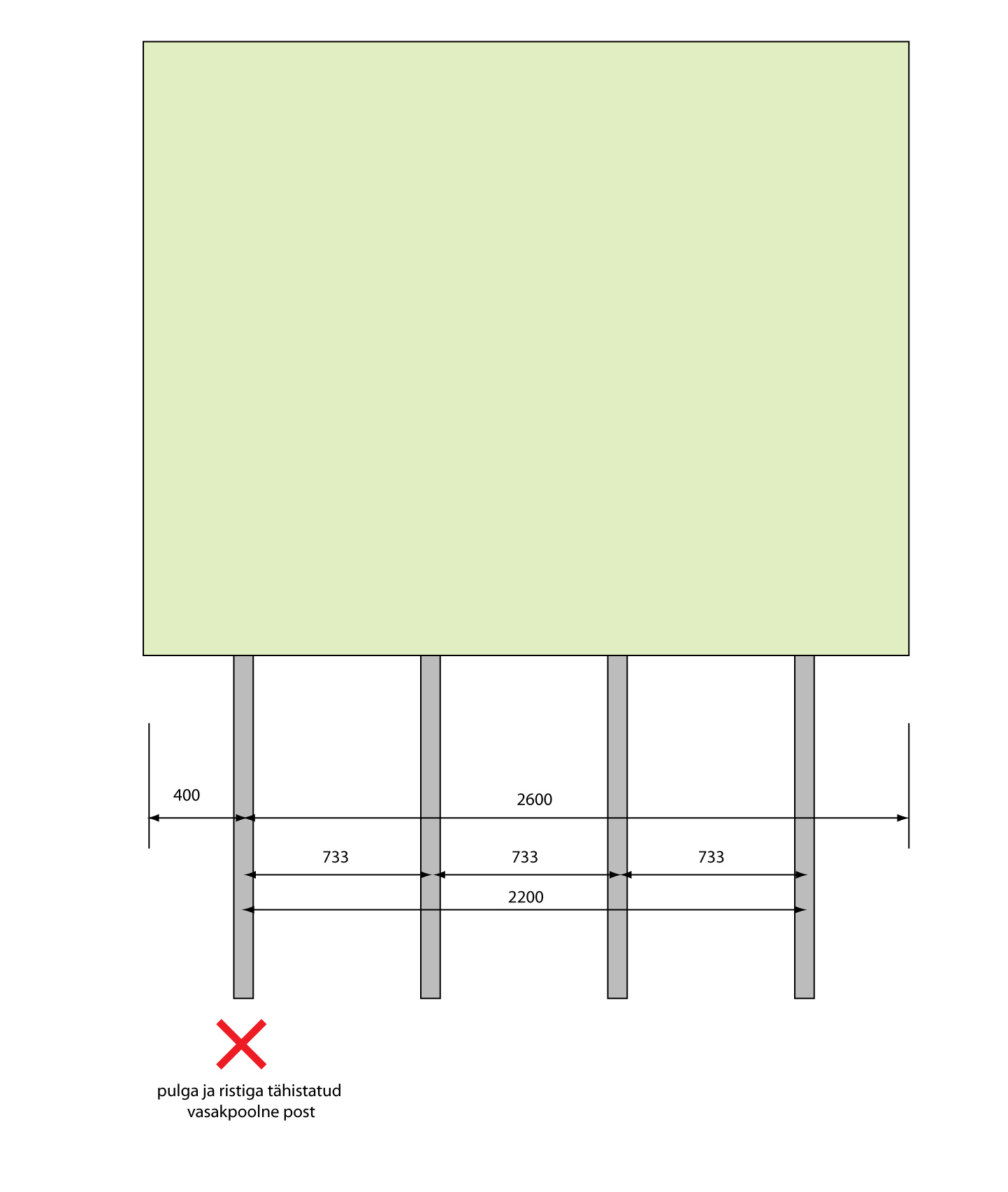
Metallkonstruktsioon 2,4 x 3 m. 4 mm alumiiniumkomposiidist plaat kleebisega + metalltorudest postid
Lugupidamisega
|
TAPA VALLAVALITSUS |
Valdo Helmelaid Arenguosakonna juhataja Tapa Vallavalitsus +372 521 4767 |