EHITUSE TÖÖVÕTULEPING nr 9-15/2023/32
(hiliseima digitaalallkirja kuupäev)
Riigimetsa Majandamise Keskus registrikood 70004459, aadress Mõisa 3 Sagadi küla, Haljala vald, Lääne-Viru maakond 45403, keda esindab juhatuse esimehe käskkirja nr. 1-5/68 alusel ehitusspetsialist Jüri Orlov, edaspidi nimetatud "Tellija", ühelt poolt,
ja URETEK Baltic OÜ (edaspidi nimetatud töövõtja), keda esindab Aleksandr Jakubovitš, kes tegutseb volikirja alusel, teiselt poolt, keda nimetatakse edaspidi käesolevas lepingus pool või koos pooled, sõlmisid käesoleva töövõtulepingu (edaspidi nimetatud leping) alljärgnevas:
1. Lepingu objekt
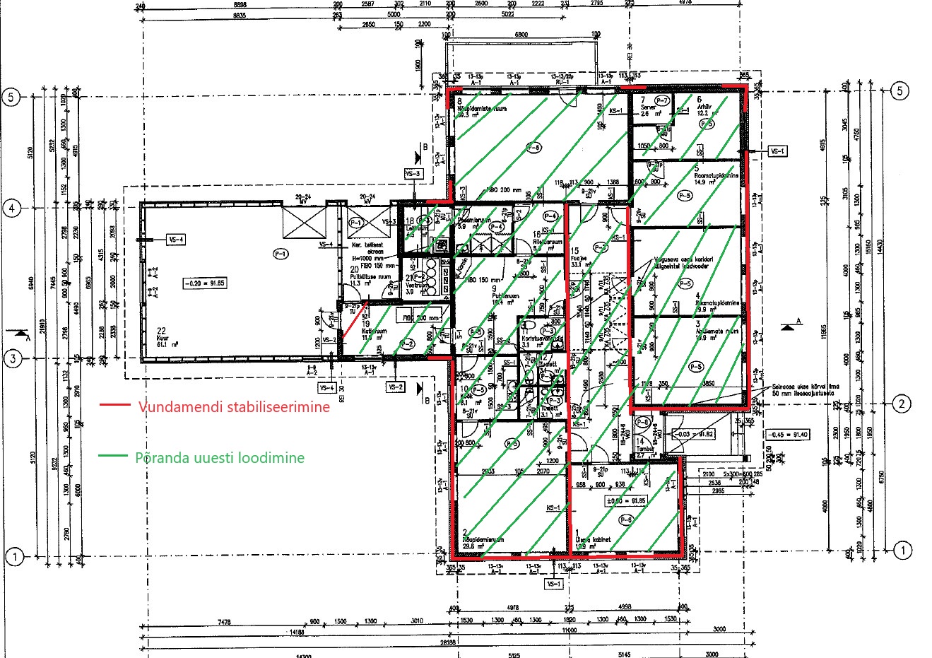
1.1. Lepingu eesmärgiks on Järva maakonnas, Järva vallas , Kurisoo külas Kralli kinnistul (13402:004:0259) asuva Rava kontori (EHR 120309625) vundamendi ja põrandate stabiliseerimine (edaspidi ehitis), lepinguga kokkulepitud tingimustel ja korras (edaspidi nimetatud töö või tööd).
1.2. Leping sätestab objektina tööd ja toimingud, mille teostamine ning teostamise korraldamine on töövõtja kohustuseks lepingu raames. Lepingus sätestatud tingimused ja kord laienevad üheselt kõigile ehitise tellijale kohaseks üleandmiseks vajalikele töödele, kui lepingust ei tulene teisiti.
2. Üldsätted
2.1. Poolte õiguste ning kohustuste aluseks on leping oma lisadega.
2.2. Pooled tagavad ja deklareerivad, et lepingu sõlmimisega ei ole nad rikkunud ühtegi enda suhtes kehtiva seaduse, põhimääruse või põhikirja või muu normatiivakti sätet ega ühtki endale varem sõlmitud lepingute ja kokkulepetega võetud kohustust.
3. TÖÖDE TEOSTAMISE TÄHTAJAD
3.1. Töövõtja alustab ehitustööde teostamist kahe nädala jooksul pärast lepingu jõustumist.
3.2. Tööüleandmise lõpptähtpäev on 15.12.2023.
4. LEPINGU HIND
4.1. Lepingu hinnaks on edukaks tunnistatud pakkumise kogumaksumus (edaspidi tööde üldmaksumus) 47 250 (nelikümmend seitse tuhat kakssada viiskümmend) eurot, millele lisandub käibemaks õigusaktidega sätestatud määras. Tööde üldmaksumus sisaldab endas töövõtja tasu, samuti töövõtja ja võimalike alltöövõtjate kõik kulutused projekteerimis-, ehitus- ja muude tööde teostamisel lepingu raames. Töövõtja kinnitab, et on arvestanud oma pakkumuse mahtu ka need tööd, mis ei ole tööde lähtetingimuses kirjeldatud, kuid mis on tuginedes heale ehitustavale ja pakkuja professionaalsusele vajalikud lepingus kirjeldatud tööde nõuetekohaseks teostamiseks.
4.2. Tööde üldmaksumusele võib lisanduda tellija reserv summas 4725 (neli tuhat seitse sada kakskümmend viis) eurot, millele lisandub käibemaks õigusaktidega sätestatud määras. Tellija eeldab, et nimetatud reserv ei kuulu tellija poolt töövõtjale tasumisele ning reservi kasutatakse üksnes juhul, kui ilmneb võrreldes seni tellitud töödega selliste täiendavate tööde tellimise vajadus, mida tellija tööde tellimisel ette ei näinud. Reservi kasutamise üle otsustab tellija töövõtja ettepanekul või iseseisvalt.
4.3. Tööde üldmaksumus ei ole seatud sõltuvusse inflatsioonist või muudest teguritest ning seega lepingu kehtivuse tähtaja jooksul korrigeerimisele ei kuulu.
5. Töövõtja kohustused
5.1. Hankida kõik töö teostamiseks vajalikud lähteandmed, ehitusmaterjalid ja -tooted või korraldada nende hankimine, tagada objektil kõigi vajalike ehitusseadmete ja muude töövahendite olemasolu, samuti kooskõlastada tellijaga eelnevalt kirjalikult kõik töö teostamisel kasutatavad materjalid, kui need ei ole määratud lepingus või lepingu lisades.
5.2. Tagada töövõtja poolt teostatava ehitustööde ja kasutatavate materjalide ning toodete kvaliteedi vastavuse lepingule ning heale ehitustavale.
5.3. Võtta tarvitusele kõik abinõud tellija poolt töövõtjale, samuti tema alltöövõtjatele usaldatud vara säilimise tagamiseks ja kanda vastutust igasuguse hooletuse eest, mis toob kaasa selle vara kaotsimineku või kahjustamise töövõtja tegevuse või tegevusetuse tõttu.
5.4. Tagada ehitustööde teostamisel vajaliku kvalifikatsiooniga tööjõu kasutamise, kindlustades töötajad vajadusel õnnetusjuhtumikindlustusega, ning tellija soovil esitada andmed tööde vahetute teostajate ja alltöövõtjate kvalifikatsiooni kohta.
5.5. Järgida tellijapoolseid dokumentide muudatusi töö teostamise käigus.
5.5.1. Tellija poolsel dokumentide muutmisel sõlmitakse selle kohta pooltevaheline kirjalik kokkulepe, milles määratletakse vähenev või täiendavalt teostamisele kuuluvate tööde maht ja hind, teostamise tähtaeg, tasumise kord ja muud tingimused. Töövõtjal on õigus ületada tööde üldmaksumust ning tööde teostamise tähtaegu ainult juhul, kui on kohaselt vormistatud eelpoolnimetatud kokkulepe.
5.6. Teatada tellijale kirjalikult viivitamatult, kuid mitte hiljem kui 3 (kolme) tööpäeva jooksul alates vastavate asjaolude ilmnemisest, tööde üldmaksumuse ületamise, kvaliteedinõuetest või teostamise tähtaegadest mittekinnipidamise vajadusest või muudest asjaoludest, mis takistavad tööde kohast alustamist, teostamist või lõpetamist. Kui töövõtja ei teata tellijale kohaselt nimetatud asjaoludest, puudub tal õigus nõuda tellijalt üle-eelarveliste kulutuste hüvitamist või tähtaegade pikendamist;
5.7. Teatada tellijale lepingu punktis 5.6. sätestatud tähtaja jooksul:
5.7.1. sellest, et tellija juhendite järgimine ohustab teostatavate tööde vastupidavust, kvaliteeti, tähtaegu või mõjutab maksumust;
5.7.2. teiste töövõtjast mitteolenevate asjaolude olemasolust, mis ohustavad teostatavate tööde vastupidavust, kvaliteeti, tähtaegu või mõjutavad maksumust;
5.7.3. igasugusest avariiohust ehitises või seda ümbritseval maa-alal, mis on antud lepingu täitmise ajaks töövõtja kasutusse.
5.8. Avarii või avariiohu korral ehitises või selle ümbruses võtta koheselt tarvitusele vajalikud meetmed avarii vältimiseks või selle tagajärgede likvideerimiseks. Tarvitusele võetud abinõud kooskõlastab töövõtja viivitamatult kirjalikult tellijaga.
5.9. Dokumenteerida ehitamise käigus tehtavad tööd (sealhulgas ehituspäevik, kaetud tööde aktid, töökoosolekute protokollid ning muud pädevate ametiisikute poolt nõutavad ehitamist iseloomustavad dokumendid, nagu näiteks, teostusjoonised), fikseerides jooksvalt ehitustööde faktiline teostamine ja kulgemine.
5.10. Tagada ehitamise käigus töötervishoiu ja tööohutuse tuleohutuse ja muude kehtestatud eeskirjade ja nõuete täitmine, sealhulgas väljastada nõutavate tööde teostamiseks ettenähtud load ja teostada ehitustööde üle pidevat järelevalvet.
5.11. Tagada ehitise, samuti ehitustööde teostamisega töövõtja valdusesse antud ehitise asukoha maaüksuse ning seda ümbritseva maa-ala ja teede korrashoid ja ohutus ümbruskonnale.
5.12. Ehitustöödel tekkivate jäätmete käitlemisel pidada kinni jäätmeseaduses sätestatud nõuetest.
5.13. Hüvitada täies ulatuses ehitustööde teostamisel või mittevastaval teostamisel ümbritsevale keskkonnale, samuti muud tellijale ja kolmandatele isikutele tekitatud kahjud.
5.14. Tagada töö teostamisel tema käsutada olevate materiaalsete väärtuste (seadmed, tööriistad, ehitusmaterjalid ja -tooted jms.) säilimine objektil ja transportimise käigus ning vajadusel need kindlustada.
5.15. Tagada töötajate varustatus tööks vajalike ning õigusaktide nõuetele vastavate isikukaitsevahenditega (töövõtja eraldusmärkidega turvariided ja muud isikukaitsevahendid) ning tagada töötajate tööohutus- ja töötervishoiualase juhendamine ja väljaõpe.
5.16. Saata viivitamatult, kui mitte hiljem kui kolme (3) tööpäeva jooksul tellijale e-posti teel teade oma töötajaga toimunud tööõnnetusest ning esitada tööõnnetuse kohta täiendavat informatsiooni tellijalt saadud teatise vormil, millel tuleb näidata järgmised andmed: tööõnnetuse toimumise aeg, töötaja ametinimetus, tehtav tööliik, tööõnnetuse raskusaste ja lühikirjeldus;
5.17. Kooskõlastada tellijaga kõik tööde teostamiseks vajalike ajutiste ehitiste püstitamiseks vajalikud kohad, samuti materjalide ladustamise ja ehitusjäätmete kogumise kohad.
5.18. Täita muid temale kui ehitusettevõtjale ehitusseadustiku ja muinsuskaitseseadusega pandud kohustusi, täites kohaselt lepingu objekti suhtes või sellega seonduvalt tehtud pädevate isikute ettekirjutusi ja nõudmisi olenemata sellest, kas töövõtja on vastava ettekirjutuse või nõudmise adressaadiks või mitte.
6. Töövõtja õigused
6.1. Kõrvale kalduda lähteülesandest määras, mis ei muuda ehitise põhimõttelisi ja funktsionaalseid lahendusi ning ei vähenda detailide, seadmete, kogu ehitise või selle üksikute osade vastupidavust ega muuda ehitus-tehnilises dokumentatsioonis fikseeritud parameetreid (nn. mitteolulised kõrvalekaldumised), millised töövõtja parima arusaamise kohaselt võiksid kaasa aidata ehitise optimaalsemale valmimisele või ehitise kvaliteedi tagamisele.
6.2. Püstitada objektil omal kulul tööde teostamiseks vajalikke abirajatisi (soojakud, piirded jne.) tellijaga eelnevalt kooskõlastatud asukohta.
6.3. Saada tellijalt ehitustööde teostamise eest tasu vastavalt lepingus sätestatud tingimustele ja korrale.
6.4. Nõuda tellijast sõltuvate mitteõiguspäraste takistuste kõrvaldamist ehitustööde teostamisel või korraldamisel.
7. Tellija kohustused
7.1. Tagada, et ehitis on seisundis, mis võimaldab töövõtjal alustada ehitustööde teostamist või nende korraldamist lepingus sätestatud tingimustel ja korras.
7.2. Tasuda töövõtjale töö eest vastavalt lepingus sätestatud tingimustele ja korrale.
7.3. Tagada töö üle omanikujärelevalve.
8. Tellija õigused
8.1. Teostada igal ajal täiendavat kontrolli tööde teostamise mahu ja kvaliteedi ning dokumentatsiooni vastavuse kohta lepingus sätestatule ja kehtestatud nõuetele.
8.2. Tööde vahetute teostajate ja alltöövõtjate kvalifikatsioonis kahtlemise korral peatada nende tegevus lepingu raames kuni asjaolude väljaselgitamiseni.
8.3. Nõuda töövõtjalt töö teostamisel igapäevast oma tööst tekkinud jääkide koristamist ja ehitise ja ehitusplatsi puhtust. Töövõtja koristamisest keeldumisel või mittekvaliteetsel koristamisel peatada tööd objektil kuni kord on tagatud või kasutada tasulist koristusteenust, nõudes selleks tehtud kulutuste hüvitamist töövõtja poolt. Eeltoodud põhjustel tööde peatamise korral puudub töövõtjal õigus nõuda töö tähtaja pikendamist või tööde üldmaksumuse ületamist.
8.4. Kasutada õiguskaitsevahendeid (sh. taganeda lepingust või öelda leping üles), samuti nõuda lepingus sätestatud juhtudel leppetrahve, kui töövõtja ei pea kinni lepingus, selle lisades või muudes lepingu juurde kuuluvates dokumentides sätestatud tähtaegadest, kvaliteedinõuetest, maksumusest, samuti kui töövõtja ei täida või täidab mittevastavalt muid endale lepinguga võetud kohustusi.
9. JÄRELEVALVE NING TÖÖNÕUPIDAMISED
9.1. Pooltel on õigus kaasata järelevalve teostamiseks sõltumatuid oma ala spetsialiste, sõlmides selleks vastavad lepingud vastavate juriidiliste või füüsiliste isikutega.
9.2. Poolte korraliste nõupidamiste korra lepivad pooled kokku ehitusalgusnõupidamisel.
9.3. Erakorralised nõupidamised toimuvad ühe poole nõudmisel mitte hiljem kui 3 (kolme) kalendripäeva jooksul alates sellekohase kirjaliku teate esitamisest teisele poolele.
9.4. Nõupidamiste käik ja sisu protokollitakse projektijuhi poolt, kui ei lepita kokku teisiti. Nõupidamiste protokollid allkirjastatakse poolte selleks volitatud esindajate poolt. Ühe poole keeldumine protokollile alla kirjutamisest peab olema motiveeritud tema poolt samas protokollis. Allakirjutamisest keeldumisel ja motiveeringu mittemärkimisel, kui teisele poolele on protokoll teistkordselt allakirjutamiseks esitatud, loetakse vastav protokoll pooltele siduvaks, kui protokollile on tehtud vastav märge teise poole allakirjutamisest keeldumise kohta. Käesolevas punktis sätestatu laieneb kõikidele lepingu alusel ja sellega seoses poolte vahel vormistatavatele dokumentidele, kui konkreetsest dokumendist või lepingust ei tulene teisiti.
10. KAETUD TÖÖD
10.1. Kaetud tööde ülevaatamine ja vastuvõtmine toimub mõlema poole volitatud esindajate osavõtul, mille kohta vormistatakse kirjalik kaetud tööde akt.
10.2. Punktis 10.1. nimetatud korrast võib kõrvale kalduda vaid juhul kui, vaatamata tellija esindaja informeerimisele kaetud tööde vastuvõtmisest, jääb esindaja kohale tulemata. Sellisel juhul informeerib töövõtja tellija esindajat kaetud töö asjaoludest ning erandkorras, kui see on tingitud konkreetse töö eripärast, vormistab kaetud tööde akti iseseisvalt. Töövõtja fikseerib nimetatud asjaolu ehituspäevikusse.
10.3. Konkreetsete kaetud tööde vastuvõtmise vajadusest tuleb tellija esindajat informeerida vähemalt 2 (kaks) tööpäeva ette.
10.4. Kaetud tööde üleandmata jätmise korral on töövõtja kohustatud tellija esindaja soovi korral omal kulul avama üleandmata kaetud tööd. Töövõtja kannab sel juhul kõik kaetud tööde avamise ning puuduste ilmnemisel ka tööde parandamisega kaasnevad kulud.
11. Töö üleandmine ja vastuvõtmine
11.1. Töö üleandmiseks tellijale esitab töövõtja oma esindaja poolt allkirjastatud üleandmise-vastuvõtmise akti, mille tellija vaatab läbi ja tagastab töövõtjale oma esindaja poolt allkirjastatult 5 (viie) tööpäeva jooksul, vastuvõtmisest keeldumise korral esitab töövõtjale põhjendatud otsuse töö vastuvõtmisest keeldumise kohta.
11.2. Töö üleandmiseks tellijale esitab töövõtja oma esindaja poolt allkirjastatud üleandmise-vastuvõtmise akti, mille tellija vaatab läbi ja tagastab töövõtjale oma esindaja poolt allkirjastatult 5 (viie) tööpäeva jooksul, vastuvõtmisest keeldumise korral esitab töövõtjale põhjendatud otsuse töö vastuvõtmisest keeldumise kohta.
11.3. Ehitustööde juhusliku hävimise või kahjustumise riisiko läheb töövõtjalt üle tellijale töö lõplikul vastuvõtmisel tellija poolt.
11.4. Jooksev töö vaheetappide vastuvõtt tellija poolt ei ole tellija poolt ehitustööde vastuvõtmise aluseks juhusliku hävimise või kahjustumise riisiko mõttes.
11.5. Vaegtööde olemasolul kannab töövõtja vaegtööde juhusliku hävimise või kahjustamise riisikot kuni vaegtööde vastuvõtmiseni tellija poolt
12. töö eest TASUMISE KORD
12.1. Tellija tasub töövõtjale teostatud ehitustööde eest vastavalt tööde jooksvale vastuvõtmisele ning töövõtja poolt esitatavate arvete alusel. Tellija maksetähtaeg on viisteist (15) tööpäeva alates vastava arve kättesaamisest tellija poolt.
12.2. Töövõtja esitab tellijale akti teostatud faktiliste töömahtude ja maksumuse kohta. Nimetatud akti aktsepteerimine tellija poolt on töövõtjale aluseks vastava arve esitamisele tellijale.
12.3. Maksed sooritatakse tellija poolt töövõtja arvelduskontole. Töövõtja esitab arve vaid elektrooniliselt. Arve esitamiseks tuleb kasutada elektrooniliste arvete esitamiseks mõeldud raamatupidamistarkvara või raamatupidamistarkvara E-arveldaja, mis asub ettevõtjaportaalis https://www.rik.ee/et/e-arveldaja.
13. GARANTII. TAGATISED
13.1. Töövõtja annab tema poolt ja korraldusel teostatud ehitustöödele ja ehitisele vähemalt 24 (kahekümne nelja) kuu pikkuse garantii. Nimetatud garantii tähtaeg algab ehitamise lõppemise päevast alates. Ehitamise lõppemise päevaks on lepingu punktis 1 nimetatud ja kirjeldatud töö üleandmise-vastuvõtmise akti allkirjastamise kuupäev tellija poolt.
13.2. Töö teostamise ja garantiiaja kestel ilmnenud või tekkinud, töövõtja poolt või tema korraldusel teostatud tööde lepingutingimustele mittevastavused kõrvaldab töövõtja omal kulul võimalikult kiiresti pärast nende avastamist tellija poolt ja vastava teate saatmist töövõtjale. Töövõtja kohustub garantiitöö üle vaatama 3 (kolme) tööpäeva jooksul.
13.3. Mittevastavuse kõrvaldamise tähtaeg lepitakse poolte poolt kokku kahepoolselt allkirjastatud garantiiaktis peale tööde mahu hindamist töövõtja poolt.
13.4. Avarii või tõsise mittevastavuse korral asub töövõtja mittevastavusi kõrvaldama viivitamatult.
13.5. Kui töövõtja keeldub punktis 13.3 nimetatud aktile alla kirjutamast või ei kõrvalda eeltoodud mittevastavusi õigeaegselt, on tellijal õigus eeltoodud mittevastavused ise kõrvaldada, ning töövõtja on kohustatud tellijale hüvitama kõik nimetatud mittevastavuste kõrvaldamisega seonduvad kulud vastavalt tellija poolt esitatud arvetele. Töövõtja tasub nimetatud arved 15 (viieteistkümne) kalendripäeva jooksul.
13.6. Töövõtja kohustub osalema garantiiülevaatusel, mille toimumise aja lepivad pooled kokku tööde üleandmise-vastuvõtmise akti vormistamisel.
13.7. Garantiitööde üleandmisel vormistab töövõtja vastava akti, olles eelnevalt teostatud töö üle vaadanud. Sõltumata teostatud töö iseloomust, kontrollib ja annab teostatud tööd tellijale üle lepingus fikseeritud töövõtja esindaja. Tellija ei võta vastavaid töid vastu töövõtja alltöövõtjalt või töövõtja esindajalt, kes ei ole lepingus fikseeritud töövõtja esindajana.
13.8. Juhul kui alltöövõtja poolt teostatud tööde garantiiaeg on pikem töövõtja garantiiajast, jääb ilmnevate mittevastavuste kõrvaldamisel tellija ees vastutavaks töövõtja.
13.9. Pärast lepingus sätestatud garantiiaja lõppu on pooltel õigus esitada teineteisele pretensioone vastavate hagi aegumise tähtaegade piires.
14. POOLTE VASTUTUS
14.1. Töövõtja vastutab lepingu mittetäitmise või mittekohase täitmisega tellijale tekitatud kahju eest, samuti on töövõtja kohustatud tellijale hüvitama tellija poolt seoses töövõtja poolse lepingu rikkumisega tehtud kulutused. Tellija vastutab lepingu süülise rikkumise eest ning on kohustatud töövõtjale hüvitama lepingu süülise rikkumisega tekitatud kahju ning töövõtja poolt tellija poolse lepingu süülise rikkumisega seoses tehtud kulutused.
14.2. Töövõtjal on õigus nõuda tellijalt arvete mittetähtaegse tasumise korral viivist 1,5% (üks koma viis protsenti) tähtajaks tasumata summalt iga viivitatud päeva eest (esitatud arvete alusel).
14.3. Tellijal on õigus nõuda töövõtjalt leppetrahvi 1,5% (üks koma viis protsenti) tööde üldmaksumusest iga lepingus sätestatud lõpptähtaega ületanud nädala eest. Tellijal on õigus lepingust taganeda või leping üles öelda, kui töövõtja viivitab lepingu lisas toodud ajagraafiku järgsete tööde alustamisega või valmimise ja üleandmisega 3 (kolm) nädalat.
15. Lepingu lõppemine ja lõpetamine
15.1. Leping lõpeb, kui lepingust tulenevad poolte kohustused on mõlemapoolselt täielikult ja nõuetekohaselt täidetud.
15.2. Tellija võib lepingu igal ajal olenemata põhjusest etteteatamistähtajata üles öelda. Sellisel juhul on tellija kohustatud tasuma töövõtjale lepingu ülesütlemise momendiks faktiliselt tehtud töö eest. Lepingu ülesütlemisel hüvitab tellija töövõtjale lisaks faktiliselt tehtud töö eest lepingu ennetähtaegse ülesütlemisega tekitatud kahju, kuid mitte rohkem, kui 10% (kümme protsenti) lepingus ettenähtud töövõtjale makstavast tasust.
15.3. Kui töö tegemise käigus selgub, et seda ei tehta nõuetekohaselt, on tellijal õigus määrata töövõtjale tähtaeg puuduste kõrvaldamiseks, selle mittetäitmisel aga kas lepingust taganeda ja nõuda kahjude hüvitamist, või teha töö jätkamine ja puuduste kõrvaldamine ülesandeks kolmandale isikule töövõtja arvel.
15.4. Juhul, kui töövõtja ei ole tööd tellijale üle andnud hiljemalt 1 (ühe) kuu möödumisel arvates kokkulepitud töö üleandmise tähtajast, on tellijal õigus ilma töövõtjale kokkulepitud tasu maksmata lepingust ühepoolselt taganeda ja nõuda sisse lepinguga ettenähtud leppetrahv ning tekitatud kahju.
16. POOLTE ESINDAJAD JA KONTAKTANDMED
16.1. Tellijat esindavad
16.1.1. Tellija esindaja, kes on volitatud lepingut täitma, muutma ja lõpetama: ehitusspetsialist Jüri Orlov tel. nr. 5216263, e-mail
[email protected];
16.1.2. Tellija esindaja, kes on volitatud täitma ja juhtima ehitusprotsessi objektil: RMK kinnisvaraosakonna Põhja piirkonna remondi- ja hooldusspetsialist Tarmo Põkka, telefon 55 29 336, e-mail
[email protected]
16.2. Töövõtjat esindavad
Töövõtja esindaja, kes on volitatud lepingut täitma, muutma ja lõpetama: projektijuht Aleksandr Jakubovitš URETEK Baltic OÜ. Telefon 506 59 59, e-mail
[email protected]
17. Teadete edastamine
17.1. Lepinguga seotud teated edastatakse telefoni teel või e-kirja teel poole lepingus märgitud e-posti aadressile. Aadressi muutusest on pool kohustatud koheselt informeerima teist poolt.
17.2. E-kirja teel edastatud teated peetakse kättesaaduks alates teate edastamisele järgnevast tööpäevast.
17.3. Lepingust taganemise avaldused ning lepingu rikkumisel teisele poolele esitatavad nõudekirjad peavad olema kirjalikus vormis. Kirjaliku vormiga on võrdsustatud digitaalselt allkirjastatud elektrooniline dokument. Viimane vorminõue on täidetud ka juhul, kui teade edastatakse e-kirja teel.
18. Lõppsätted
18.1. Kõik lepingu muudatused jõustuvad pärast nende allakirjutamist mõlema poole poolt allakirjutamise momendist või poolte poolt kirjalikult määratud tähtajal.
18.2. Lepinguga seonduvaid eriarvamusi ja vaidlusi lahendavad pooled eelkõige läbirääkimiste teel. Kui lepingust tulenevaid vaidlusi ei õnnestu lahendada poolte läbirääkimistega, lahendatakse vaidlus Harju Maakohtus.
18.3. Leping on allkirjastatud digitaalselt
Poolte andmed ja allkirjad
Tellija
Töövõtja
Riigimetsa Majandamise Keskus
Sagadi küla, 45403 Haljala vald,
Lääne-Viru maakond
Registrikood 70004459
Telefon 676 7500
E-post
[email protected]
URETEK Baltic OÜ
Pärnu mnt 160f,
Tallinn 11317
Registrikood 12856953
Telefon 506 59 59
E-post
[email protected]