| Dokumendiregister | Transpordiamet |
| Viit | 7.2-2/26/21902-11 |
| Registreeritud | 11.02.2026 |
| Sünkroonitud | 12.02.2026 |
| Liik | Sissetulev kiri |
| Funktsioon | 7.2 Detail-, eri- ja maakonnaplaneeringute kooskõlastamine |
| Sari | 7.2-2 Teetaristu detail-, eri, maakonna detailplaneeringute ja keskkonnamõju strateegiliste hinnangute kooskõlastamine |
| Toimik | 7.2-2/2026 |
| Juurdepääsupiirang | Avalik |
| Juurdepääsupiirang | |
| Adressaat | Rae Vallavalitsus |
| Saabumis/saatmisviis | Rae Vallavalitsus |
| Vastutaja | Jana Prost (Users, Teehoiuteenistus, Planeerimise osakond, Kooskõlastuste üksus) |
| Originaal | Ava uues aknas |
From: Jana Prost <[email protected]>
Sent: Wednesday, February 11, 2026 9:03 AM
To: Melika Alliksoo <[email protected]>
Subject: Suur-Tõnikse kinnistu DP liikluskorraldusest
Tere, Melika
Palun registreeri allolev kiri mulle tööülesandeks, mille sain Marek Linnult Teamsi teel 10.02.2026.
Siduda saab Deltas 7.2-2/25/21902-10.
Parimat soovides
Jana Prost
Peaspetsialist
Planeerimise osakonna kooskõlastuste üksus
+372 57 924 753
From: Jana Prost
Sent: Tuesday, February 10, 2026 12:50 PM
To: Marek Lind <[email protected]>
Subject: Suur-Tõnikse kinnistu DP
Tere, Marek
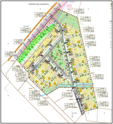
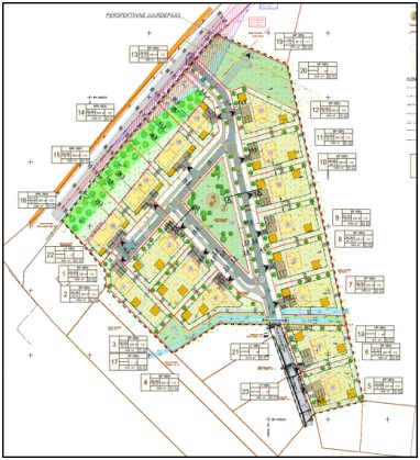
Annan sulle ülevaate Suur-Tõnikse kinnistu DPst.
2024.05 oleme kooskõlastanud DP lahenduse, millel ei olnud kavandatud jalakäijate teeületuskohtasid ja bussipeatuseid.

2024.11 on KOV meile esitanud DP korduvaks kooskõlastamiseks põhjusel, et:

DP seletuskirjas on toodud selgitus, et:



2024.12 on esitatud liikluskorralduslikule lahendusele andnud arvamuse:
Margus Magus
Ma ise nagu vastu ei oleks, st ei näe probleemi, kui tuleb teeületuskohti juurde. 112/113 näitel läheduses on ol.olevad ülekäigukohad olemas, aga tõen. olenevalt inimese sihtpunktist, võidakse ametliku teeületuskoha puudumisel hakata käima ikka sealt, kust on otsem käia üle mnt kergl.teele.
Sp ei oleks vastu, et ülekäigukohad tulevad kohtadesse, kus tõen. hakatakse liikuma DP ja ol.oleva kergl.tee vahel.
Hannes Ristov
Minu arvamusel saame ka nõustuda. Teeületuskohad tuleb ette näha seal ,kus on neid vaja.
Täiendaks veel sellega, et perspektiivne bussipeatus 11113 peal Kurve tee 1 ja 1a kinnistu kõrval vajab rohkem ruumi, et tagada teeületuskohast jalgtee ligipääs bussipeatusesse. Muidu hakatakse otse bussitaskust diagonaalselt teeületuskohale liikuma, mistõttu jalakäija liigub ebamääraselt ja liiga pikalt tee peal ja võib auto alla jääda.
Sellega seoses peab seda bussipeatust kuvama ka teeületuskohast kaugemal. Teisel pool teed oleva bussipeatus on sobiv.
2024.12 oleme andnud DPle korduva kooskõlastuse koos nimetatud märkustega.
Seega DP esialgse lahenduse muutmise sisend on tulnud KOVilt.
Parimat soovides
Jana Prost
Peaspetsialist
Planeerimise osakonna kooskõlastuste üksus
+372 57 924 753
| Nimi | K.p. | Δ | Viit | Tüüp | Org | Osapooled |
|---|---|---|---|---|---|---|
| Harjumaa Rae vald Karla küla Suur-Tõnikse kinnistu ja lähiala detailplaneeringu kehtestamisest informeerimine | 24.10.2025 | 3 | 7.2-2/25/21902-10 | Sissetulev kiri | transpordiamet | Rae Vallavalitsus |
| Harju maakond, Rae vald, Karla küla, Suur-Tõnikse detailplaneeringuala mahasõidu tingimuste väljastamine | 28.08.2025 | 1 | 7.2-2/25/21902-9 | Sissetulev kiri | transpordiamet | Invelo OÜ |
| Karla küla Suur-Tõnikse kinnistu ja lähiala detailplaneeringu avaliku väljapaneku tulemuste avalik arutelu | 07.08.2025 | 1 | 7.2-2/25/21902-8 | Sissetulev kiri | transpordiamet | Rae Vallavalitsus |
| Karla küla Suur-Tõnikse kinnistu ja lähiala detailplaneeringu vastuvõtmisest ja avalikustamisest informeerimine | 20.06.2025 | 3 | 7.2-2/25/21902-7 | Sissetulev kiri | transpordiamet | Rae Vallavalitsus |
| Kiri | 11.12.2024 | 2 | 7.2-2/24/21902-6 | Valjaminev kiri | transpordiamet | Rae Vallavalitsus |
| Harjumaa Rae vald Karla küla Suur-Tõnikse kinnistu ja lähiala detailplaneeringu esitamine korduvaks kooskõlastamiseks | 14.11.2024 | 4 | 7.2-2/24/21902-5 | Sissetulev kiri | transpordiamet | Rae Vallavalitsus |
| Harjumaa Rae vald Karla küla Suur-Tõnikse kinnistu ja lähiala detailplaneeringu esitamine korduvaks kooskõlastamiseks | 14.11.2024 | 4 | 7.2-2/24/21902-5 | Sissetulev kiri | transpordiamet | Rae Vallavalitsus |
| Kiri | 30.05.2024 | 4 | 7.2-2/24/21902-4 | Valjaminev kiri | transpordiamet | Rae Vallavalitsus |
| Harjumaa Rae vald Karla küla Suur-Tõnikse kinnistu ja lähiala detailplaneeringu esitamine kooskõlastamiseks | 03.05.2024 | 3 | 7.2-2/24/21902-3 | Sissetulev kiri | transpordiamet | Rae Vallavalitsus |
| Kiri | 17.11.2023 | 171 | 7.2-2/23/21902-2 | Valjaminev kiri | transpordiamet | Rae Vallavalitsus |
| Harjumaa Rae vald Karla küla Suur-Tõnikse kinnistu ja lähiala detailplaneeringu planeeringuala muutmisest informeerimine | 18.10.2023 | 201 | 7.2-2/23/21902-1 | Sissetulev kiri | transpordiamet | Rae Vallavalitsus |