| Dokumendiregister | Terviseamet |
| Viit | 9.3-1/24/4301-18 |
| Registreeritud | 30.01.2026 |
| Sünkroonitud | 02.02.2026 |
| Liik | Sissetulev dokument |
| Funktsioon | 9.3 Teenuste terviseohutus |
| Sari | 9.3-1 Ehitusprojekti või detailplaneeringu terviseohutuse hinnangud või kooskõlastused |
| Toimik | 9.3-1/2024 |
| Juurdepääsupiirang | Avalik |
| Juurdepääsupiirang | |
| Adressaat | OÜ Fund Ehitus |
| Saabumis/saatmisviis | OÜ Fund Ehitus |
| Vastutaja | Karmen Põld (TA, Peadirektori asetäitja (2) vastutusvaldkond, Põhja regionaalosakond) |
| Originaal | Ava uues aknas |
From: Oliver Tarik <[email protected]>
Sent: Fri, 30 Jan 2026 08:06:20 +0000
To: Karmen Põld <[email protected]>
Subject: RE: Järveotsa 1c detailplaneering
|
Tähelepanu! Tegemist on väljastpoolt asutust saabunud kirjaga. Tundmatu saatja korral palume linke ja faile mitte avada. |
Tere,
Edastan uuendatud müra modelleerimise.
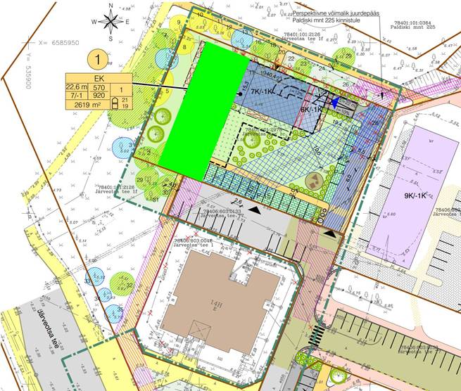
Krundi piiri ja hoone vahele oleme planeerinud teha haljasala. Lisaks on meil tarvis tagada jalakäijate vaba läbipääs kinnistult. Seega peame nii lõuna- kui põhjaküljele planeerima kõnniteed, mis tagavad vajalikud läbipääsud.
Kinnistu idapoolsesse osasse (hoone varju jääv osa) planeerime alad, kus elanikud saavad veeta oma vaba aega (mänguväljak, istumispingid jms).
Eelduslik eskiis on allpool.

From: Karmen Põld <[email protected]>
Sent: reede, 9. jaanuar 2026 16:14
To: Oliver Tarik <[email protected]>
Subject: Vs: Järveotsa 1c detailplaneering
Tere
Selleks, et oleks võimalik öelda, kas antud lahendus oleks sobilik ning saaks Terviseameti poolt kooskõlastuse, tuleks antud lahenduse osas koostada müra modelleerimine. Modelleerimise põhjal on Terviseametil võimalik öelda, kas antud lahendus võiks sobida. Lisaks oleks abiks see, kui kirjeldate, mis täpsemalt on planeeritud alale, mis jääb krundi piiri ning planeeritava hoone vahele ning hoone külgedele.
Lugupidamisega
Karmen Põld
vaneminspektor (keskkonnatervis)
Põhja regionaalosakond
+372 5484 0193
|
|
Terviseamet +372 794 3500 [email protected]
Paldiski mnt 81, 10614 Tallinn |
Käesolev kiri on mõeldud ainult kirja adressaatidele. Kui olete saanud kirja ekslikult, palun teavitage koheselt selle saatjat ning kustutage saadud kiri koos kõikide lisadega. NB! Juurdepääsupiirangu märkega dokumentide avaldamine kõrvalistele isikutele on keelatud.
Saatja: Oliver Tarik <[email protected]>
Saatmisaeg: reede, 2. jaanuar 2026 11:49
Adressaat: Karmen Põld <[email protected]>
Teema: RE: Järveotsa 1c detailplaneering
|
Tähelepanu! Tegemist on väljastpoolt asutust saabunud kirjaga. Tundmatu saatja korral palume linke ja faile mitte avada. |
Tere,
Tänud selgituste eest.
Saime informatsiooni TLPA-st, et Järveotsa 1c detailplaneeringu teemat arutati 17.12.25 toimunud koosolekul.
Koosolekul lepiti kokku, et üks võimalik lahendus oleks maja asukoha muutmine selliselt, et maja blokeeriks liiklusmüra ja sisehoovis oleks seetõttu väiksem müratase. Skeem on allpool, kus on rohelisega näidatud hoone uus võimalik asukoht.
Kas seesugune lahendus oleks Terviseametile sobilik ja võime lahendused ümber projekteerida?
Kuna muudatus nõuab aega ja raha, siis soovime ennetavalt teada, milline on Teie/Terviseameti arvamus alloleva lahenduse osas?

Edukat Uut Aastat!
Oliver Tarik
OÜ Fund Ehitus
Kinnisvara arendusjuht
Mob. 56 40 265
From: Karmen Põld <[email protected]>
Sent: kolmapäev, 10. detsember 2025 14:50
To: Oliver Tarik <[email protected]>
Subject: Vs: Järveotsa 1c detailplaneering
Tere
Nagu ka varasemalt olen selgitanud, kehtib piirväärtuse puhul maa-alale üks normtase ning hoone teepoolsel välispiirdel (fassaadil) teine. Antud juhul on maa-alal lubatud müratase päeval 60 dB ning hoone teepoolsel küljel 65 dB. Taolist lähenemist toetab ka keskkonnaministri 16.12.2016 määruse nr 71 „Välisõhus leviva müra normtasemed ja mürataseme mõõtmise, määramise ja hindamise meetodid“ seletuskiri, kus kirjutatakse : "Seega eri huvide ja õiguste tasakaalustamiseks on mõistlik sarnaselt määrusele nr 42 kehtestada ka edaspidi teealaga piirnevatel kinnistutel hoonete teepoolsel välispiirdel (fassaadil) leebemad normtasemed kui kinnistu teistel aladel.".
Lugupidamisega
Karmen Põld
vaneminspektor (keskkonnatervis)
Põhja regionaalosakond
+372 5484 0193
|
|
Terviseamet +372 794 3500 [email protected]
Paldiski mnt 81, 10614 Tallinn |
Käesolev kiri on mõeldud ainult kirja adressaatidele. Kui olete saanud kirja ekslikult, palun teavitage koheselt selle saatjat ning kustutage saadud kiri koos kõikide lisadega. NB! Juurdepääsupiirangu märkega dokumentide avaldamine kõrvalistele isikutele on keelatud.
Saatja: Oliver Tarik <[email protected]>
Saatmisaeg: neljapäev, 4. detsember 2025 15:33
Adressaat: Karmen Põld <[email protected]>
Teema: RE: Järveotsa 1c detailplaneering
|
Tähelepanu! Tegemist on väljastpoolt asutust saabunud kirjaga. Tundmatu saatja korral palume linke ja faile mitte avada. |
Tere,
Tänud tagasiside eest.
Meil jääb siiski selgusetuks, millise müranõude vastu me eksinud oleme? Varasemast kirjavahetusest saime aru, et viitate maa-alal levivale liiklusmürale, mis ületab 60dB.
KeM määruse nr 71 Lisa 1 tabeli kohaselt on liiklusmüra piirväärtus päeval teepoolsel küljel 65dB. Seda piirmäära me antud juhul ei ületa. Liiklusmüra tase 60dB või rohkem on Paldiski mnt ja Järveotsa tee poolsetel külgedel.
From: Karmen Põld <[email protected]>
Sent: kolmapäev, 3. detsember 2025 16:12
To: Oliver Tarik <[email protected]>
Subject: Vs: Järveotsa 1c detailplaneering
Tere
Terviseamet võtab oma kooskõlastuse andmisel aluseks detailplaneeringu materjalide koosseisus esitatud mürahinnangu. Toote oma kirjas välja: „Manuses oleva mürakaardi nr. 1-1 (lk 18) kohaselt tumepunase ala arvutuslik liiklusmüra tase 60dB või rohkem. Kuna 60dB on lubatud piirmäär, siis võib mürakaarti tõlgendada ka seaduse silmis sobilikuks olevaks (mh. võttes arvesse ka allpool kirjeldatud kõrghaljastuse punkti). Seega täidame ära ka KeM määruse nr 71 Lisa 1 tabeli kohase nõrgema piirmäära“. Me ei ole antud tõlgendusega nõus, eriti arvestades, et fassaadideni jõuavad müratasemed, mis on suuremad kui 60 dB.
Viitate, et planeeringuala asub olemasolevate elamute ning lasteaia kõrval ning seetõttu on see ala elamu ehitamiseks sobilik. See ei saa olla põhjenduseks uute elanike toomisel mürarikkasse keskkonda.
Kõrghaljastus ei pruugi olla müra leevendamise seisukohalt tõhus, näiteks võib see sõltuda ka aastaajast. Kindlasti vajaks müra leevendamise meetmed täiendavaid modelleerimisi, et näha nende tõhusust planeeritavale alale.
Terviseamet jääb oma varasema seisukoha juurde ning ei kooskõlasta planeeringu praegust lahendust.
Lugupidamisega
Karmen Põld
vaneminspektor (keskkonnatervis)
Põhja regionaalosakond
+372 5484 0193
|
|
Terviseamet +372 794 3500 [email protected]
Paldiski mnt 81, 10614 Tallinn |
Käesolev kiri on mõeldud ainult kirja adressaatidele. Kui olete saanud kirja ekslikult, palun teavitage koheselt selle saatjat ning kustutage saadud kiri koos kõikide lisadega. NB! Juurdepääsupiirangu märkega dokumentide avaldamine kõrvalistele isikutele on keelatud.
Saatja: Oliver Tarik <[email protected]>
Saatmisaeg: teisipäev, 18. november 2025 13:53
Adressaat: Karmen Põld <[email protected]>
Teema: RE: Järveotsa 1c detailplaneering
|
Tähelepanu! Tegemist on väljastpoolt asutust saabunud kirjaga. Tundmatu saatja korral palume linke ja faile mitte avada. |
Tere,
Oleme Järveosa 1c detailplaneeringu Terviseameti märkust menetlenud ja soovime täpsustada teie esitatud märkust (manuses) ja viimast e-kirja (vt. allpool). Meie järeldused olukorrast on allpool ja palume tagasisidet, kas oleme korrektselt aru saanud:

i. 
ii. 
From: Karmen Põld <[email protected]>
Sent: reede, 9. mai 2025 15:47
To: Oliver Tarik <[email protected]>
Subject: Vs: Järveotsa 1c detailplaneering
Tere
Selgitan, et detailplaneeringu maa-alal, kuhu kavandatakse elamu, on ületatud keskkonnaministri 16.12.2016 määruses nr 71 „Välisõhus leviva müra normtasemed ja mürataseme mõõtmise, määramise ja hindamise meetodid“ (edaspidi KeM määrus nr 71) lisas 1 toodud II kategooria liiklusmüra piirväärtused. Täpsustan, et KeM määrus nr 71 lisas 1 toodud normtasemed kehtivad maa-alal (välisõhus), mitte ainult hoone fassaadil. Müra piirväärtus on atmosfääriõhu kaitse seaduse kohaselt suurim lubatud müratase, mille ületamine põhjustab olulist keskkonnahäiringut ja mille ületamisel tuleb rakendada müra vähendamise abinõusid. Seega tuleks detailplaneeringuga lahendada müratasemete küsimus ja leida viis, milliste meetmetega tagada müra normtasemete vastavus maa-alal. Terviseamet saab koostöö raames hinnata Teie pakutud lahendusi detailplaneeringu alal leviva müra vähendamiseks.
Lugupidamisega
Karmen Põld
vaneminspektor (keskkonnatervis)
põhja regionaalosakond
+372 5484 0193
|
|
Terviseamet +372 794 3500 [email protected]
Paldiski mnt 81, 10614 Tallinn |
Käesolev kiri on mõeldud ainult kirja adressaatidele. Kui olete saanud kirja ekslikult, palun teavitage koheselt selle saatjat ning kustutage saadud kiri koos kõikide lisadega. NB! Juurdepääsupiirangu märkega dokumentide avaldamine kõrvalistele isikutele on keelatud.
Saatja: Oliver Tarik <[email protected]>
Saatmisaeg: reede, 25. aprill 2025 14:40
Adressaat: Karmen Põld <[email protected]>
Teema: Järveotsa 1c detailplaneering
|
Tähelepanu! Tegemist on väljastpoolt asutust saabunud kirjaga. Tundmatu saatja korral palume linke ja faile mitte avada. |
Tere,
Olen Oliver Tarik OÜ Fund Ehitusest ja tegelen Järveotsa 1c detailplaneeringuga (DP045840). Täname Teid arvamuse eest.
Oleme varasemalt sama teemaga konsulteerinud Terviseametist Liis Korp`iga. Minule teadaolevalt tema enam Terviseametis ei tööta, seega loodame Teiega olukorrale lõpliku lahenduse leida. Ma usun, et koostöös on meil võimalik leida mõlemale osapoolele sobilik lahendus.
Kuna meil on soov selle kinnistu detailplaneeringuga operatiivselt edasi liikuda, siis teen ettepaneku antud teemat arutada TPRi väliselt ja e-kirja teel. Loodan, et ettepanek on sobilik.
Manuses on ka meie kirjavahetus Liis Korp`iga sel teemal. Me arutlesime, kuidas võiksime detailplaneeringus müra leevendusmeetmeid selliselt sõnastada, et see hilisemas projekteerimise staadiumis ka õnnestunult projekteeritaks ning ellu viidaks. Koostöös K-Projektiga võtsime ette sarnased projektid ja panime kokku seletuskirja sõnastuse, mis võiks olla sobilik. Muuhulgas tegime järgnevad muudatused dokumentides:
Kas Teil oleks võimalik anda oma hinnang, kas meie tehtud muudatused on sobilikud?
Võime lahendusi arutada ka näiteks telefoni teel või Teams rakenduse kaudu.
P.S. Kuna antud hoone arendajaks ja ehitajaks on Fund Ehitus, siis ei ole muuhulgas ka ohtu, et müra leevendamise meetmete info kuskile kaduma läheks.
Kõike paremat!
Oliver Tarik
OÜ Fund Ehitus
Kinnisvara arendusjuht
Mob. 56 40 265
25533-01
JÄRVEOTSA TEE 1C HAABERSTI LINNAOSA, TALLINN DETAILPLANEERING
LIIKLUSMÜRA HINNANG
25533-01
Kajaja Acoustics OÜ Laki põik 2, 12915 Tallinn Reg.kood 11485414 vastutav isik: Marko Ründva [email protected]
töö nr: 25533 staadium: detailplaneering töö nimetus: liiklusmüra hinnang objekti nimetus: Järveotsa tee 1c
2/17
TELLIJA OÜ Fund Ehitus Veerenni tn 40a, 10138 Tallinn Reg.kood: 11277437 Tel.: +372 680 0190 KOOSTAJA Kajaja Acoustics OÜ Laki põik 2, 12915 Tallinn, Eesti Reg.kood: 11485414 Tel.: +372 5626 4614 e-post: [email protected] www.kajaja.ee
VASTUTAV KONSULTANT KONSULTANDID Eteri Eha Reeli Silman [email protected] [email protected] /allkirjastatud digitaalselt/
Marko Ründva | juhatuse liige [email protected]
Ilona Laaneveer [email protected]
KUUPÄEV: 16.01.2026
DOKUMENDI KONTROLL: staatus versioon kommentaarid kuupäev autor 1 saadetud Tellijale 16.01.2026 E.Eha
25533-01
Kajaja Acoustics OÜ Laki põik 2, 12915 Tallinn Reg.kood 11485414 vastutav isik: Marko Ründva [email protected]
töö nr: 25533 staadium: detailplaneering töö nimetus: liiklusmüra hinnang objekti nimetus: Järveotsa tee 1c
3/17
KOKKUVÕTE Liiklusmüra olukorra välja selgitamiseks käsitletaval alal teostati autoliiklusest põhjustatud müratasemete arvutused ning vahetud helirõhutasemete mõõtmised auto- ja lennuliikluse kohta.
Arvutused teostati vastavalt üldtunnustatud Prantsusmaa arvutusmeetodile NMPB-Routes-96 ning mõõtmised vastavalt Nordtest 056 meetodile NT ACOU056 „Road traffic: Measurement of noise immission – survey method“.
Müratasemete arvutused teostati olemasolevas olukorras vastavalt 2022. aasta liikluskoormuse hinnangutele.
Töö planeeringuala puudutavad peamised tulemused on: - 2022. aasta liiklusolukorras mõjuvad hoone Paldiski mnt poolsetele fassaadidele päevasel ajal
müratasemed Ld ≤ 64 dB ning öisel ajal Ln ≤ 55 dB. Hoone põhjapoolsetele fassaadidele mõjuvad päevasel ajal müratasemed Ld ≤ 61 dB ning öisel ajal Ln ≤ 52 dB. Hoone lõunapoolsetele fassaadidele mõjuvad päevasel ajal müratasemed Ld ≤ 62 dB ning öisel ajal Ln ≤ 53 dB. Hoone sisekvartalisse jäävatele fassaadidele mõjuvad päevasel ajal müratasemed Ld ≤ 50 dB ning öisel ajal Ln ≤ 43 dB;
- planeeritud mänguväljakule mõjub 2022. aasta liiklusolukorras päevasel ajal müratase Ld ≤ 51 dB ning öisel ajal Ln ≤ 44 dB.
Planeeritavate hoonete juures on täidetud Keskkonnaministri 16. detsembri 2016. a määruse nr 71 „Välisõhus leviva müra normtasemed ja mürataseme mõõtmise, määramise ja hindamise meetodid“ kehtestatud II kategooria piirväärtuse nõuded. Mänguväljaku juures on täidetud määruse sihtväärtuse nõuded.
Reaalsete helirõhutasemete mõõtmistulemused olid planeeringualal päevasel ajal teostatud mõõtmiste ajal LA,eq = 55…59 dB. Mõõtmistulemuste ja modelleerimistulemuste võrdlusest selgub, et reaalsete helirõhutasemete mõõtmiste ning teoreetilise müra levikumudeli põhjal arvutatud müratasemed on olemasolevas olukorras üsna sarnased (erinevus ca 2 dB).
Projekteeritava hoone välispiirete konstruktsioonid tuleb valida minimaalselt selliselt, et tänava poole jäävate mitmest erineva heliisolatsiooniga elemendist välispiirete ühisisolatsioon oleks vähemalt R’tr,s,w+Ctr ≥ 35…40 dB, olenevalt projekteeritava hoone ruumide otstarbest ja lubatud liiklusmüratasemest siseruumides ja välispiirdele mõjuvast liiklusmüratasemest.
Antud töö raames läbi viidud mõõtmiste tulemusena selgus, et lennuliiklusest põhjustatud müratasemed on öisel ajavahemikul LpA,eq, = 61…67 dB. Maksimaalne müratase öisel ajavahemikul on LAF,max, = 69…83 dB. Tegu on lühiajaliste mürasündmustega, mis kestavad kokku 50-60 sekundit. Hoone konstruktsioonitüüpide ning avatäidete valikul tuleb arvestada lennuliikluse mõjuga.
25533-01
Kajaja Acoustics OÜ Laki põik 2, 12915 Tallinn Reg.kood 11485414 vastutav isik: Marko Ründva [email protected]
töö nr: 25533 staadium: detailplaneering töö nimetus: liiklusmüra hinnang objekti nimetus: Järveotsa tee 1c
4/17
SISUKORD KOKKUVÕTE ........................................................................................................................................................... 3 1. SISSEJUHATUS ........................................................................................................................................... 5 2. ÕIGUSLIK RAAMISTIK .............................................................................................................................. 5 3. LIIKLUSMÜRA MÕÕTMISED .................................................................................................................... 6 3.1 MÕÕTESEADMED JA METOODIKA ................................................................................................................... 6 3.2 MÕÕTMISTE KORRALDUS ................................................................................................................................ 7 3.3 ILMASTIKUTINGIMUSED .................................................................................................................................. 8 3.4 SÕIDUTEE JA LIIKLUSE TINGIMUSED ............................................................................................................... 9 3.5 MÕÕDETUD LIIKLUSMÜRATASEMED ............................................................................................................. 9 4. LENNUMÜRA MÕÕTMISED ................................................................................................................... 10 4.1 MÕÕTESEADMED JA METOODIKA ................................................................................................................. 10 4.2 MÕÕTMISTE KORRALDUS .............................................................................................................................. 10 4.3 ILMASTIKUTINGIMUSED ................................................................................................................................ 12 4.4 MÕÕTMISTULEMUSED ................................................................................................................................... 12 5. MÜRA LEVIKU MODELLEERIMINE ........................................................................................................ 12 5.1 METOODIKA .................................................................................................................................................... 12 5.2 LÄHTEANDMED ............................................................................................................................................... 13 5.2.1 Autoliiklus ............................................................................................................................................................................ 13 5.2.2 Lennuliiklus ......................................................................................................................................................................... 13 6. MODELLEERIMISTULEMUSED ............................................................................................................... 14 7. MÕÕTMISTULEMUSTE JA MODELLEERIMISTULEMUSTE VÕRDLUS .................................................. 15 8. SOOVITUSED ........................................................................................................................................... 16 LISAD .................................................................................................................................................................... 17
25533-01
Kajaja Acoustics OÜ Laki põik 2, 12915 Tallinn Reg.kood 11485414 vastutav isik: Marko Ründva [email protected]
töö nr: 25533 staadium: detailplaneering töö nimetus: liiklusmüra hinnang objekti nimetus: Järveotsa tee 1c
5/17
1. SISSEJUHATUS Planeeringuala asub Harjumaal Haabersti linnaosas Tallinnas Järveotsa tee 1c kinnistul. Ala piirneb loode-põhja suunas Paldiski maanteega, mistõttu on tegemist suure liikluskoormusega piirkonnaga. Vastavalt Haabersti linnaosa kehtivale üldplaneeringule1 on piirkonna maakasutuse juhtotstarbeks korterelamute ala, kus võivad paikneda kahe või enama korrusega korterelamud ning väikesed lähipiirkonda teenindavad vaba aja veetmise võimalusi pakkuvad, kaubandus-, teenindus- ja lastehoiuettevõtted.
Projektialale on kavandatud korterelamu, mille maksimaalne korruselisus on 7. Lisaks on planeeritud alale mänguväljak.
Joonis 1. Haabersti linnaosa üldplaneeringu maakasutusest väljavõte
Mürahinnangu lähteandmetena on kasutatud: - Järveotsa tee 1c kinnistu detailplaneering. Põhijoonis (K-Projekt AS, 13.01.2026).
2. ÕIGUSLIK RAAMISTIK Välisõhus leviv müra on atmosfääriõhu kaitse seaduse2 tähenduses inimtegevusest põhjustatud ning välisõhus leviv soovimatu või kahjulik heli, mille tekitavad paiksed või liikuvad allikad.
Välisõhus leviva müra normtasemed on: - müra piirväärtus – suurim lubatud müratase, mille ületamine põhjustab olulist keskkonnahäiringut ja
mille ületamisel tuleb rakendada müra vähendamise abinõusid; - müra sihtväärtus – suurim lubatud müratase uute üldplaneeringutega aladel.
Vastavalt üldplaneeringu maakasutuse juhtotstarbele määratakse mürakategooriad järgmiselt:
- I kategooria: virgestusrajatise maa-alad; - II kategooria: haridusasutuse, tervishoiu- ja sotsiaalhoolekandeasutuse ning elamu maa-alad, rohealad; - III kategooria: keskuse maa-alad; - IV kategooria: ühiskondlike hoonete maa-alad; - V kategooria: tootmise maa-alad; - VI kategooria: liikluse maa-alad.
Müratundlik ala on keskkonnaministri 16. detsembri 2016. a määruses nr 71 „Välisõhus leviva müra normtasemed ja mürataseme mõõtmise, määramise ja hindamise meetodid“3 defineeritud kui üldplaneeringu juhtotstarbega määratud ala, millele on kehtestatud müra normtasemed.
1 Haabersti linnaosa üldplaneering 2 Atmosfääriõhu kaitse seadus 3 Keskkonnaministri 16.detsembri 2016.a määrus nr 71 „Välisõhus leviva müra normtasemed ja mürataseme mõõtmise, määramise ja hindamise meetodid“
25533-01
Kajaja Acoustics OÜ Laki põik 2, 12915 Tallinn Reg.kood 11485414 vastutav isik: Marko Ründva [email protected]
töö nr: 25533 staadium: detailplaneering töö nimetus: liiklusmüra hinnang objekti nimetus: Järveotsa tee 1c
6/17
Siseruumide müratasemele esitatavad nõuded elamutes ja ühiskasutusega hoonetes (haridus- ja teadushooned, hoolekandeasutuse hooned ja meelelahutushooned) on kehtestatud sotsiaalministri 12. novembri 2025. a määrusega nr 61 „Nõuded müra, sealhulgas ultra- ja infraheli ohutusele elamutes ja ühiskasutusega hoonetes ning helirõhutaseme mõõtmise meetodid“4. Müra normtasemeid kohaldatakse üksnes hoonetele, kus inimesed viibivad pidevalt – näiteks elamutele ning ühiskasutusega hoonetele, milleks määruse järgi on haridus- ja teadushooned, hoolekandeasutused ning meelelahutushooned –, kuna neis on inimesed müra suhtes tundlikumad.
Eesti siseriiklikud keskkonnamüra normväärtused on sätestatud keskkonnaministri 16. detsembri 2016. a määruse nr 71 „Välisõhus leviva müra normtasemed ja mürataseme mõõtmise, määramise ja hindamise meetodid“ lisas 1.
Praktikale tuginedes, on Tallinnas seatud eesmärgiks detailplaneeringute koostamisel võimalusel liiklusmüra piirväärtuse nõude täitmine ja inimeste poolt aktiivselt kasutatavatel puhkealadel, mänguväljakutel jne sihtväärtuse nõude täitmine.
Vastavalt Haabersti linnaosa üldplaneeringule ja Tallinna Keskkonna- ja Kommunaalameti otsusele tuleb käsitletavat ala määrusest tulenevalt käsitleda kui II mürakategooria ala. Tabel 1. Liiklusmüra normtasemed. Müra kirjeldaja on hinnatud müratase L [dB]
kategooria ajavahemik liiklusmüra normtasemed piirväärtus sihtväärtus I päev (Ld) 55 50 öö (Ln) 50 40 II päev (Ld) 60 (651) 55 öö (Ln) 55 (601) 50 III päev (Ld) 65 (701) 60 IV öö (Ln) 55 (601) 50
1 lubatud müratundlike hoonete sõidutee poolsel küljel
Liiklusmüra maksimaalne helirõhutase müratundlike hoonetega aladel LpA,max ei tohi ületada päeval 85 dB ja öösel 75 dB.
3. LIIKLUSMÜRA MÕÕTMISED Järveotsa tee 1c planeeringuala olemasoleva keskkonnamüra olukorra hindamiseks teostati vahetud helirõhutasemete mõõtmised. Mõõtmised teostati kahes mõõtmispunktis päevasel ajal kuupäeval 15.09.2023 vahemikus 08:05-09:05.
Mõõtmiste teostajad olid Argo Päid ja Ilona Laaneveer.
3.1 MÕÕTESEADMED JA METOODIKA Tabel 2. Kasutatud mõõteseadmed
seade tüüp tehase tähis kalibreerimise kuupäev
müramõõdik NTi Audio XL2-TA A2A-15376-E0 21.03.2023
mikrofon NTi Audio M2230 09543 21.03.2023
kalibraator NTi Audio CAL200 16083 09.12.2022
müramõõdik NTi Audio XL2-TA A2A-18245-E0 22.03.2023
mikrofon NTi Audio M2230 7994 22.03.2023
4 Sotsiaalministri 12. novembri 2025.a määrus nr 61 „Nõuded müra, sealhulgas ultra- ja infraheli ohutusele elamutes ja ühiskasutusega hoonetes ning helirõhutaseme mõõtmise meetodid“
25533-01
Kajaja Acoustics OÜ Laki põik 2, 12915 Tallinn Reg.kood 11485414 vastutav isik: Marko Ründva [email protected]
töö nr: 25533 staadium: detailplaneering töö nimetus: liiklusmüra hinnang objekti nimetus: Järveotsa tee 1c
7/17
seade tüüp tehase tähis kalibreerimise kuupäev
kalibraator NTi Audio CAL200 18283 21.03.2023
Mõõtmised ja arvutused teostati metoodika „Road traffic: Measurement of noise immission – survey method (NT ACOU 056)“ alusel.
Mõõtmiste käigus fikseeriti järgmised helirõhutasemed: - LA,eq,T [dB] – A-korrigeeritud ekvivalentne helirõhutase fikseeritud ajaperioodi hindamiseks; - LA,F,max [dB] – A-korrigeeritud maksimaalsed helirõhutasemed mõõtmisperioodil.
3.2 MÕÕTMISTE KORRALDUS Helirõhutasemed mõõdeti Järveotsa tee 1c kinnistu piiril. Mõõtmised viidi läbi 2 mõõtepositsioonis:
- mõõtmispositsioonis MP01, mis asus Järveotsa tee 1c kinnistu loodenurgas ja Paldiski maanteest (põhimaantee nr 8) ca 60 meetri kaugusel, kasutati mõõteseadet tehase tähistusega A2A-18245-E0;
- mõõtmispositsioonis MP02, mis asus Järveotsa tee 1c edelanurgas ja Järveotsa teest (põhitänav) ca 50 meetri kaugusel, kasutati mõõteseadet tehase tähistusega A2A-15376-E0;
Mõõtepositsioonide ning mikrofoni paiknemised on näidatud joonistel (joonis 2 ja joonis 3).
Joonis 2. Mõõtmispunktide asukohad. Kaart on orienteeritud põhja-lõuna suunaliselt (allikas: Maa- ja Ruumiameti geoportaal)
25533-01
Kajaja Acoustics OÜ Laki põik 2, 12915 Tallinn Reg.kood 11485414 vastutav isik: Marko Ründva [email protected]
töö nr: 25533 staadium: detailplaneering töö nimetus: liiklusmüra hinnang objekti nimetus: Järveotsa tee 1c
8/17
Joonis 3. Mõõteseadmete positsioonid (vasakul MP02 ja paremal MP01)
Välisõhus levivat müra on võimalik mõõta mikrofoni kolme asetusega: nn vaba väli, heli kahekordne peegeldus ehk +6 dB ja heli koherentne peegeldus ehk +3 dB. Vaba välja korral on mikrofoni kaugus kõigi heli peegeldavate pindadeni vähemalt kaks korda suurem kui mikrofoni kaugus teest. Mõõtmispositsioonide kirjeldus on esitatud tabelis 3.
Tabel 3. Mõõtepositsioonid MP01 ja MP02
mõõtepositsiooni kirjeldus
mõõtmispunkti kõrgus maapinnast ca 1,5 m
mõõtmispunkti (MP01) kaugus sõiduteest (Paldiski mnt) ca 60 m
mõõtmispunkti (MP02) kaugus sõiduteest (Järveotsa tee) ca 50 m
mõõtmiste teostamise ajaline kestus 60 min
helivälja tingimus vaba heliväli
Enne ja pärast mõõtmiste teostamist kontrolliti mõõteseadmed akustilise kalibraatori abil.
3.3 ILMASTIKUTINGIMUSED Tabel 4. Riigi Ilmateenistus, Tallinn-Harku ilmajaam
temperatuur [°C] tuule kiirus [m/s] tuule suund [°] õhuniiskus [%] üldpilvisus
15.09.2023
08.00 7,9 0,8 (1,5) 231 96 0/10
09.00 11,7 1,3 (2,3) 258 89 2/10
Märkus: mõõtmiste teostaja ei vastuta Riigi Ilmateenistuse poolt esitatud andmete õigsuse eest.
25533-01
Kajaja Acoustics OÜ Laki põik 2, 12915 Tallinn Reg.kood 11485414 vastutav isik: Marko Ründva [email protected]
töö nr: 25533 staadium: detailplaneering töö nimetus: liiklusmüra hinnang objekti nimetus: Järveotsa tee 1c
9/17
3.4 SÕIDUTEE JA LIIKLUSE TINGIMUSED Tabel 5. Paldiski mnt – põhimaantee (tee nr 8). Mõõtmispunkt MP01
maantee kirjeldus
teekatte tüüp asfalt
teekatte seisukord korras, kuiv
sõiduread ja laius 2+2 sõidurada, teekatte laius 14 m
rehvid suverehvid
piirkiirus 50 km/h
loendatud kergete sõidukite hulk mõõtmise ajal 1716 sõidukit
loendatud raskete sõidukite hulk mõõtmise ajal 93 sõidukit
Tabel 6. Järveotsa tee – põhitänav . Mõõtmispunkt MP02
maantee kirjeldus
teekatte tüüp asfalt
teekatte seisukord korras, kuiv
sõiduread ja laius 1+2 sõidurada, teekatte laius 12 m
rehvid suverehvid
piirkiirus 50 km/h
loendatud kergete sõidukite hulk mõõtmise ajal 635 sõidukit
loendatud raskete sõidukite hulk mõõtmise ajal 54 sõidukit
3.5 MÕÕDETUD LIIKLUSMÜRATASEMED Saadud mõõtmistulemused on esitatud järgnevas tabelis.
Tabel 7. Mõõtmistulemused
Mõõtmistulemuste laiendmääramatus on 5 dB (katteteguriga k=2, kahepoolne usaldusvahemik). Käesolevas protokollis esitatud tulemused kehtivad konkreetsetele katseobjektidele.
mõõdetud müratase maksimaalne müratase
LA,eq [dB] LAF,max [dB]
MP01 (23310-230915-P01) 59 71
MP02 (23310-230915-P02) 55 66
25533-01
Kajaja Acoustics OÜ Laki põik 2, 12915 Tallinn Reg.kood 11485414 vastutav isik: Marko Ründva [email protected]
töö nr: 25533 staadium: detailplaneering töö nimetus: liiklusmüra hinnang objekti nimetus: Järveotsa tee 1c
10/17
4. LENNUMÜRA MÕÕTMISED Järveotsa tee 1c planeeringualal lennuliiklusest põhjustatud helirõhutasemete fikseerimiseks teostati helirõhutasemete mõõtmised. Mõõtmised teostati ühes mõõtmispunktis öisel ajal kuupäeval 01.07.2024 vahemikus 00:00-01:00.
Mõõtmiste teostajad olid Margit Errapart ja Eteri Eha.
4.1 MÕÕTESEADMED JA METOODIKA Mõõtmistel kasutatud mõõteseadmed on toodud tabelis 8. Tabel 8. Kasutatud mõõteseadmed
seade tüüp tehase tähis kalibreerimise kuupäev
müramõõdik NTi Audio XL2-TA A2A-15376-E0 21.03.2023
mikrofon NTi Audio M2230 09543 21.03.2023
kalibraator NTi Audio CAL200 16083 06.02.2024
Mõõtmised teostati ja tulemused hinnati vastavalt üldistele keskkonnamüra mõõtmiste standarditele:
EVS-ISO 1996-1:2017 Akustika. Keskkonnamüra kirjeldamine, mõõtmine ja hindamine. Osa 1: Põhisuurused ja hindamiskord;
EVS-ISO 1996-2:2017 Akustika. Keskkonnamüra kirjeldamine, mõõtmine ja hindamine. Osa 2: Helirõhu taseme määramine.
Mõõtmiste käigus fikseeriti järgmised helirõhutasemed:
- LA,eq,T [dB] – A-korrigeeritud ekvivalentne helirõhutase fikseeritud ajaperioodi hindamiseks; - LAF,max [dB] – fast-ajakorrigeeritud maksimaalne helirõhutase, mis kirjeldab maksimaalset mürataset
0,125 s ajaperioodi jooksul.
Enne ja pärast mõõtmise teostamist kontrolliti mõõteseadmed akustilise kalibraatori abil.
4.2 MÕÕTMISTE KORRALDUS Helirõhutasemed mõõdeti Tallinnas Haabersti linnaosas Järveotsa tee 1c kinnistul. Mõõtmised teostati öisel ajal ühes mõõtmispositsioonis, mõõtmisperioodi jooksul liikles 7 lennukit.
Info mõõteperioodil liigelnud õhusõidukite kohta on võetud www.flightradar24.com , mõõtmiste teostaja ei vastuta seal esitatud andmete õigsuse eest.
Mõõtepositsiooni ning mikrofoni paiknemine on näidatud joonistel (joonis 4 ja joonis 5).
Mõõtepositsioonide kirjeldus on esitatud tabelis 9. Tabel 9. Mõõtepositsioon MP01
mõõtepositsiooni kirjeldus
mõõtmispunkti kõrgus maapinnast ca 1,5 m
mõõtmispunkti kaugus Lennart Meri Tallinna lennujaamast ca 10 km
mõõtmiste teostamise ajaline kestus 60 min
helivälja tingimus vaba heliväli
25533-01
Kajaja Acoustics OÜ Laki põik 2, 12915 Tallinn Reg.kood 11485414 vastutav isik: Marko Ründva [email protected]
töö nr: 25533 staadium: detailplaneering töö nimetus: liiklusmüra hinnang objekti nimetus: Järveotsa tee 1c
11/17
Joonis 4. Mõõtmispunktide asukoht. Kaart on orienteeritud põhja-lõuna suunaliselt (allikas: Maa- ja Ruumiameti geoportaal)
Joonis 5. Mikrofoni positsioon (MP01)
25533-01
Kajaja Acoustics OÜ Laki põik 2, 12915 Tallinn Reg.kood 11485414 vastutav isik: Marko Ründva [email protected]
töö nr: 25533 staadium: detailplaneering töö nimetus: liiklusmüra hinnang objekti nimetus: Järveotsa tee 1c
12/17
4.3 ILMASTIKUTINGIMUSED Tabel 10. Riigi Ilmateenistus, Tallinn-Harku ilmajaam
temperatuur [°C] tuule kiirus [m/s] tuule suund [°] õhuniiskus [%] üldpilvisus
01.07.2024
00.00 19,0 3,4 122 70 0/10
01.00 19,0 4,4 129 69 8/10
Märkus: mõõtmiste teostaja ei vastuta Riigi Ilmateenistuse poolt esitatud andmete õigsuse eest.
4.4 MÕÕTMISTULEMUSED Käesolevas protokollis esitatud tulemused kehtivad konkreetsetele katseobjektidele.
Mürasündmusena on käsitletud piirkonna taustmürast selgelt eristatavad lennumüra sündmused, mis on mõõtmispunktide ja -aegade kaupa eraldi välja toodud järgnevates tabelites.
Mürasündmuse ajaline kestus on aeg, mil lennutegevusest tulenev mõõdetud helirõhutase on kõrgem kui piirkonnas valitsev üldine taustmüra (looduslik taustmüra, liiklusmüra jms). Tabel 11. Mõõtmistulemused mõõtmispunktis
kuupäev kellaaeg
õhusõiduk kirjeldus mürasündmuse ajaline kestus t [s]
mõõdetud LA,eq,T [dB]
mõõdetud LAF,max [dB]
01.07.2024 00.09-00.10 Mitsubishi CRJ-900LR maandumas 53 63 75 00.23-00.24 Airbus A220-300 maandumas 51 64 72 00.35-00.36 Airbus A220-300 maandumas 58 61 70 00.45-00.46 Airbus A220-300 maandumas 42 63 69 00.48-00.49 Airbus A220-300 maandumas 48 66 83 00.51-00.52 Airbus A320-214 maandumas 51 67 77 00.54-00.55 Mitsubishi CRJ-900LR maandumas 45 64 73
Mõõtmistulemuste laiendmääramatus on 4 dB (katteteguriga k=2, kahepoolne usaldusvahemik). Vastavalt standardis EVS-ISO 1996-1:2017 toodud määratlusele ei ole õhusõidukite müra puhul tegemist impulssheliga. Vastavalt standardi EVS-ISO 1996-2:2017 lisa K alusel, ei ole mõõdetud müra sageduskarakteristikute alusel tonaalne.
5. MÜRA LEVIKU MODELLEERIMINE
5.1 METOODIKA Müra leviku modelleerimine teostati spetsiaaltarkvaraga Datakustik CadnaA 2026. Autoliikluse puhul on arvutused teostatud vastavalt Prantsusmaa siseriiklikule arvutusmeetodile NMPB-Routes-96.
Müratasemete arvutused teostati 2 meetri kõrgusel maapinnast. Mürakontuurid esitati 5 dB kaupa. Uuringualas levivate müratasemete määramiseks kasutati kolmemõõtmelist maastikumudelit, millele lisati kavandatav hoonestus koos kontuuride ja kõrgustega ning autoteed koos vastavate liiklussagedustega. Alusjooniste ja kõrgusandmetena kasutati Maa-ameti geoportaali maapinna kõrgusmudeli andmeid ning tellija poolt saadetud jooniseid.
Teede ja tänavate liiklussageduste andmed saadi Stratum OÜ poolt koostatud Tallinna linna liikluskoormuse uuringutest aastate 2022 kohta.
Müra modelleerimisel kasutati järgmisi lähteparameetreid:
- võrgustiku samm 5x5 m; - peegelduste arv 2;
25533-01
Kajaja Acoustics OÜ Laki põik 2, 12915 Tallinn Reg.kood 11485414 vastutav isik: Marko Ründva [email protected]
töö nr: 25533 staadium: detailplaneering töö nimetus: liiklusmüra hinnang objekti nimetus: Järveotsa tee 1c
13/17
- liiklusvool „unsteady“; - maapinna helineelde koefitsient vastavalt pinnakattele.
Müraarvutustes kasutati müraindikaatoritena siseriiklikke müraindikaatoreid Ld ja Ln, mis iseloomustavad vastavalt päevase (kl 07-23) ja öise (kl 23-07) ajavahemiku keskmisi ekvivalentseid müratasemeid. Ld päevane ajavahemik sisaldab ka õhtust ajavahemikku (kl 19-23), millele lisandub õhtuse aja parand +5 dB.
Müra leviku modelleerimisel ei arvestatud kõrghaljastusega kirjeldamaks võimalikku ebasoodsaimat olukorda, samuti on talvisel perioodil lehtpuude ning hekkide mürakaitse efekt minimaalne.
5.2 LÄHTEANDMED
5.2.1 AUTOLIIKLUS
Müra hinnangu koostamisel kasutatud liiklusandmed on esitatud tabelis 12. Töö lähteandmetena on kasutatud Tallinna linna õhtuse tipptunni liiklusprognoose, mille liiklushulgad on teisendatud aasta keskmiseks ööpäevaseks liiklussageduseks. Tabelis on esitatud sõiduautode ja raskeliikluse jaotus tunni lõikes (sõidukit/tunnis) ning aasta keskmine ööpäevane liiklussagedus (AKÖL).
Tunnikeskmised liiklussagedused, mida kasutati müra modelleerimisel saadi vastavalt päeva (kl 7-19), õhtu (kl 19- 23) ja öö (kl 23-7) jaotusele: 12 tundi, 4 tundi ja 8 tundi. Liikluskoormuse jaotumisena ööpäeva lõikes kasutati vastavalt CNOSSOS-EU juhendmaterjalis5 kirjeldatud jaotisi (tabel 13). Müratasemete modelleerimisel kasutati liikluskiirusena kehtivat piirkiirust 50 km/h.
Tabel 12. Aasta 2022 liiklussagedused projektiala ümbruses
tänav AKÖL sõidukit/h, päev
sõidukit/h, õhtu
sõidukit/h, öö
Paldiski mnt (Pikaliiva - Õismäe tee) 16069 1031 522 201 Paldiski mnt (Õismäe tee - Järveotsa tee) 20038 1286 651 250 Paldiski mnt (Järveotsa tee - Järvekalda tee) 22008 1412 715 275 Õismäe tee (Paldiski mnt - Õismäe tee 115a) 7761 498 252 97 Õismäe tee 115a - Õismäe tee 62 4218 271 137 53 Õismäe tee 62 - Õismäe tee 117 6650 427 216 83 Õismäe tee 117 - Õismäe tee 115a 5799 372 188 72 Õismäe tee 62 - Õismäe tee 38 9112 585 296 114 Järveotsa tee (Paldiski mnt - Järveotsa tee T19) 6212 399 202 101 Järveotsa tee (Järveotsa tee T19 - Astangu) 6888 442 224 112
Tabel 13. Auto- ja raskeliikluse jagunemine tee liik sõiduki tüüp päev % õhtu % öö % peatee/peatänav autoliiklus jagunemine 77 13 10 raskeliikluse osakaal 8 6 3
5.2.2 LENNULIIKLUS
Käsitletavast alast umbes 9,4 km kaugusel idasuunas asub Tallinna Lennujaama territoorium. Tallinna lennujaama lennukoridorid on ida-lääne suunalised ning käsitletav ala jääb lennuliikluse müra mõjutsooni.
Lennuliikluse müra hinnangu aluseks on Estonian, Latvian & Lithuanian Environment OÜ poolt 2022. a koostatud Tallinna linna välisõhu strateegilise mürakaardi lennuliikluse mürakaardid6. Mürakaartide kohaselt ulatuvad päeval käsitletavale alale lennuliiklusest põhjustatud müratasemed Ld = 45…50 dB (joonis 6). Öisel ajal ulatuvad
5 CNOSSOS-EU arvutusmeetodi juhendmaterjal 6 Tallinna linna mürakaart 2022
25533-01
Kajaja Acoustics OÜ Laki põik 2, 12915 Tallinn Reg.kood 11485414 vastutav isik: Marko Ründva [email protected]
töö nr: 25533 staadium: detailplaneering töö nimetus: liiklusmüra hinnang objekti nimetus: Järveotsa tee 1c
14/17
käsitletavale alale lennuliiklusest põhjustatud müratasemed Ln ≤ 45 dB (joonis 7). Seega ei suurenda lennuliiklusest tingitud müratase päevasel ajal autoliiklusest tingitud müratasemeid käsitletaval alal.
Antud töö raames läbi viidud mõõtmiste tulemusena selgus, et lennuliiklusest põhjustatud müratasemed on öisel ajavahemikul LpA,eq, = 61…67 dB. Maksimaalne müratase öisel ajavahemikul on LAF,max, = 69…83 dB. Tegu on lühiajaliste mürasündmustega, mis kestavad kokku 50-60 sekundit. Hoone konstruktsioonitüüpide ning avatäidete valikul tuleb arvestada lennuliikluse mõjuga.
Joonis 6. Lennumüra strateegiline mürakaart - päevane müra (sinisega märgitud käsitletav ala)
Joonis 7. Lennumüra strateegiline mürakaart - öine müra (sinisega märgitud käsitletav ala)
6. MODELLEERIMISTULEMUSED Müratasemete arvutustulemusena valmis 6 kaarti päevase ning öise ajavahemiku jaoks. Modelleeriti olemasoleva liikluskoormuse stsenaarium päevasel ja öisel ajal, mis on esitatud lisas 1.
Töö planeeringuala puudutavad peamised tulemused on:
- 2022. aasta liiklusolukorras mõjuvad hoone Paldiski mnt poolsetele fassaadidele päevasel ajal müratasemed Ld ≤ 64 dB ning öisel ajal Ln ≤ 55 dB. Hoone põhjapoolsetele fassaadidele mõjuvad päevasel ajal müratasemed Ld ≤ 61 dB ning öisel ajal Ln ≤ 52 dB. Hoone lõunapoolsetele fassaadidele mõjuvad
25533-01
Kajaja Acoustics OÜ Laki põik 2, 12915 Tallinn Reg.kood 11485414 vastutav isik: Marko Ründva [email protected]
töö nr: 25533 staadium: detailplaneering töö nimetus: liiklusmüra hinnang objekti nimetus: Järveotsa tee 1c
15/17
päevasel ajal müratasemed Ld ≤ 62 dB ning öisel ajal Ln ≤ 53 dB. Hoone sisekvartalisse jäävatele fassaadidele mõjuvad päevasel ajal müratasemed Ld ≤ 50 dB ning öisel ajal Ln ≤ 43 dB;
- planeeritud mänguväljakule mõjub 2022. aasta liiklusolukorras päevasel ajal müratase Ld ≤ 51 dB ning öisel ajal Ln ≤ 44 dB.
Planeeritavate hoonete juures on täidetud Keskkonnaministri 16. detsembri 2016. a määruse nr 71 „Välisõhus leviva müra normtasemed ja mürataseme mõõtmise, määramise ja hindamise meetodid“ kehtestatud II kategooria piirväärtuse nõuded. Mänguväljaku juures on täidetud määruse sihtväärtuse nõuded.
7. MÕÕTMISTULEMUSTE JA MODELLEERIMISTULEMUSTE VÕRDLUS Tabelis 14 on esitatud liiklusmüra mõõtmis- ja modelleerimistulemuste võrdlus samades asukohtades.
Tabel 14. Mõõtmistulemuste ja modelleerimistulemuste võrdlus
mõõtmispositsioon kaugus teeservast [m]
mõõtmis- tulemused, LAeq [dB]
modelleerimis- tulemused, LAeq [dB]
tulemuste võrdlus
MP01 ca 60 59 dB 61 dB 2 dB MP02 ca 50 55 dB 57 dB 2 dB
Arvutustulemuste võrdlusest on näha, et reaalsete helirõhutasemete mõõtmiste ning teoreetilise müra levikumudeli põhjal arvutatud müratasemed on üsna sarnased (erinevus 2 dB).
Helirõhutasemete mõõtmiste käigus loendati ka planeeringualast mööduvaid sõidukeid – mõõtmiste ajal oli tunni aja jooksul Paldiski maanteel loendatud sõidukite arv 1716, millest 93 oli raskeliiklus. Teoreetilises arvutuses kasutatud sõidukite hulk on 1412, millest raskeliiklus 113. Järveotsa teel loendatud sõidukite arv tunni aja jooksul oli 635, millest 54 oli raskeliiklus. Teoreetilises arvutuses kasutatud sõidukite hulk on 399, millest raskeliiklus 32.
See tähendab, et teoreetilistes müra leviku arvutustes tehtud eeldused vastavad piisava täpsusega reaalsele olukorrale. Järveotsa tee kõrgem liiklussagedus loendamise hetkel võis olla tingitud sellest, et hommikuse tipptunni ajal kasutati sõidukite poolt rohkem väiksema liiklussagedusega Järveotsa teed, et vältida Paldiski mnt olevat liiklusummikut.
25533-01
Kajaja Acoustics OÜ Laki põik 2, 12915 Tallinn Reg.kood 11485414 vastutav isik: Marko Ründva [email protected]
töö nr: 25533 staadium: detailplaneering töö nimetus: liiklusmüra hinnang objekti nimetus: Järveotsa tee 1c
16/17
8. SOOVITUSED Kuivõrd Paldiski mnt puhul on tegu kõrge liikluskoormusega peateega, on soovituslik planeeringuala teepoolsete hoonete ruumide jaotamisel vältida müratundlike ruumide (nt magamistubade) paigutamist tänavapoolsele küljele ning võimalusel mitte kavandada hoone tänavapoolsetele külgedele avatavaid aknaid. Muuhulgas on soovituslik rõdud klaasida.
Laste mänguväljak ehk projektiga seotud müratundlik objekt on soovituslik kavandada mürarikka maantee (Paldiski mnt) suhtes teest võimalikult kaugele, et vähendada maanteelt levivat müra mänguväljakule. Lisaks on soovituslik istutada mänguväljaku lähedusse täiendavat haljastust, mis aitab veelgi müra varjestada.
Fassaadide projekteerimisel ja ehitamisel tuleb tagada, et siseruumide müratase ei ületaks helirõhu piirväärtusi vastavalt sotsiaalministri 12. novembri 2025. a määrusele nr 61 „Nõuded müra, sealhulgas ultra- ja infraheli ohutusele elamutes ja ühiskasutusega hoonetes ning helirõhutaseme mõõtmise meetodid“. Mürataseme mõõtmised tuleb teostada möbleeritud ruumides suletud akende ja uste tingimustes. Kui ruumides on ventilatsiooni sissepuhke- ja väljatõmbeavad, peavad need olema mõõtmise ajal avatud ja töös.
Hoonete projekteerimisel tuleks arvestada standardi EVS 842:2003 ”Ehitiste heliisolatsiooninõuded. Kaitse müra eest” liiklusmüra normtasemeid elamutes ja ühiskasutusega hoonetes.
Vastavalt standardile EVS 842:2003 ”Ehitiste heliisolatsiooninõuded. Kaitse müra eest.” tuleks projekteeritavate ehitiste välispiirete konstruktsioonide heliisolatsiooni hindamisel ja üksikute elementide valimisel rakendada välispiirde ühisisolatsiooni indeksit R’tr,s,w, vastavalt keskkonnamüra taseme suurusele, ehitise tüübile ja ruumikasutusotstarbele. Ehitiste välispiirete heliisolatsiooni hindamisel ja üksikute elementide valikul tuleb rakendada transpordimüra spektri lähendustegurit Ctr vastavalt standardile EVS-EN ISO 717.
Vastavalt standardis EVS 842:2003 ”Ehitiste heliisolatsiooninõuded. Kaitse müra eest.” tabelis 6.3 – ”Välispiiretele esitatavad heliisolatsiooninõuded olenevalt välismüratasemest” toodule tuleks projekteeritava hoone välispiirete konstruktsioonid projekteerida minimaalselt selliselt, et kõrge müratasemega tänava poole jäävate mitmest erineva heliisolatsiooniga elemendist välispiirete ühisisolatsioon oleks vähemalt R’tr,s,w+Ctr ≥ 35…40 dB, olenevalt projekteeritava hoone ruumide otstarbest ja lubatud liiklusmüratasemest siseruumides ja välispiirdele mõjuvast liiklusmüratasemest. Akende valikul tuleb tähelepanu pöörata akende heliisolatsioonile transpordimüra suhtes. Kui aken moodustab ≥50% välispiirde pinnast, võetakse akna nõutava heliisolatsiooni suuruseks välispiirde õhumüra isolatsiooni indeks.
25533-01
Kajaja Acoustics OÜ Laki põik 2, 12915 Tallinn Reg.kood 11485414 vastutav isik: Marko Ründva [email protected]
töö nr: 25533 staadium: detailplaneering töö nimetus: liiklusmüra hinnang objekti nimetus: Järveotsa tee 1c
17/17
LISAD Lisa 1. Mürakaardid
- Mürakaart nr 1-1 Müraolukord 2022 Ld (dB), päev - Mürakaart nr 1-2 Müraolukord 2022 Ln (dB), öö - Mürakaart 3D nr 2-1 Müraolukord 2022 Ld (dB), päev - Mürakaart 3D nr 2-2 Müraolukord 2022 Ln (dB), öö - Mürakaart 3D nr 3-1 Müraolukord 2022 Ld (dB), päev - Mürakaart 3D nr 3-2 Müraolukord 2022 Ln (dB), öö
50
49
64
64 61 61
60
49
49
49
50 60
61 61
64
64
64
64 61
60 58
61 61
62 64
64
50
51 64
64
50
5061 61
62
10KE 9KE
Järveotsa tee
Pald isk
i m nt
Järveotsa tee 1c
mänguväljak
MP01
MP02
6K
6K
7K
4K
1
3
5
13
2
Mürakaart nr 1-1
Projekt nr 25533
Projekti nimi: Järveotsa tee 1c
Liiklusmüra 2022 mõõtmispositsioonidega (MP01 ja MP02)
Liiklusmürast põhjustatud müratasemed:
Hinnatud müratase Päev (07-23), Ld [dB]
Värviskaala:
>= 35 >= 40 >= 45 >= 50 >= 55 >= 60 >= 65 >= 70 >= 75
Elukondlikud hooned
Muud hooned
Planeeritav hoonestus
----- Planeeringuala piir
----- Planeeritav mänguväljak
Mõõtkava A3 1:800
Arvutustarkvara: CadnaA 2026
Kuupäev: 16.01.26
42
41
55
55 52 52
51
41
41
41
42 51
52 53
55
55
55
55 52
51 49
52 53
53 55
55
42
43 55
55
42
4252 53
53
10KE 9KE
Järveotsa tee
Pald isk
i m nt
Järveotsa tee 1c
mänguväljak
MP01
MP02
6K
6K
7K
4K
1
3
5
13
2
Mürakaart nr 1-2
Projekt nr 25533
Projekti nimi: Järveotsa tee 1c
Liiklusmüra 2022 mõõtmispositsioonidega (MP01 ja MP02)
Liiklusmürast põhjustatud müratasemed:
Hinnatud müratase Öö (23-07), Ln [dB]
Värviskaala:
>= 35 >= 40 >= 45 >= 50 >= 55 >= 60 >= 65 >= 70 >= 75
Elukondlikud hooned
Muud hooned
Planeeritav hoonestus
----- Planeeringuala piir
----- Planeeritav mänguväljak
Mõõtkava A3 1:800
Arvutustarkvara: CadnaA 2026
Kuupäev: 16.01.26
Mürakaart nr 2-1
Projekt nr 25533
Projekti nimi: Järveotsa tee 1c
Liiklusmüra 2022 3D vaade edela poolt
Liiklusmürast põhjustatud müratasemed:
Hinnatud müratase Päev (07-23), Ld [dB]
Värviskaala:
>= 35 >= 40 >= 45 >= 50 >= 55 >= 60 >= 65 >= 70 >= 75
Arvutustarkvara: CadnaA 2026
Kuupäev: 16.01.26
Mürakaart nr 2-2
Projekt nr 25533
Projekti nimi: Järveotsa tee 1c
Liiklusmüra 2022 3D vaade edela poolt
Liiklusmürast põhjustatud müratasemed:
Hinnatud müratase Öö (23-07), Ln [dB]
Värviskaala:
>= 35 >= 40 >= 45 >= 50 >= 55 >= 60 >= 65 >= 70 >= 75
Arvutustarkvara: CadnaA 2026
Kuupäev: 16.01.26
Mürakaart nr 3-1
Projekt nr 25533
Projekti nimi: Järveotsa tee 1c
Liiklusmüra 2022 3D vaade kirde poolt
Liiklusmürast põhjustatud müratasemed:
Hinnatud müratase Päev (07-23), Ld [dB]
Värviskaala:
>= 35 >= 40 >= 45 >= 50 >= 55 >= 60 >= 65 >= 70 >= 75
Arvutustarkvara: CadnaA 2026
Kuupäev: 16.01.26
Mürakaart nr 3-2
Projekt nr 25533
Projekti nimi: Järveotsa tee 1c
Liiklusmüra 2022 3D vaade kirde poolt
Liiklusmürast põhjustatud müratasemed:
Hinnatud müratase Öö (23-07), Ln [dB]
Värviskaala:
>= 35 >= 40 >= 45 >= 50 >= 55 >= 60 >= 65 >= 70 >= 75
Arvutustarkvara: CadnaA 2026
Kuupäev: 16.01.26
| Nimi | K.p. | Δ | Viit | Tüüp | Org | Osapooled |
|---|---|---|---|---|---|---|
| Kiri | 12.02.2026 | 1 | 9.3-1/24/4301-19 | Väljaminev dokument | ta | OÜ Fund Ehitus |
| Vastuskiri | 09.01.2026 | 3 | 9.3-1/24/4301-17 | Väljaminev dokument | ta | OÜ Fund Ehitus |
| Vastuskiri | 02.01.2026 | 3 | 9.3-1/24/4301-16 | Sissetulev dokument | ta | OÜ Fund Ehitus |
| Vastuskiri | 10.12.2025 | 1 | 9.3-1/24/4301-15 | Väljaminev dokument | ta | OÜ Fund Ehitus |
| Vastuskiri | 08.12.2025 | 1 | 9.3-1/24/4301-14 | Sissetulev dokument | ta | OÜ Fund Ehitus |
| Vastuskiri | 03.12.2025 | 1 | 9.3-1/24/4301-13 | Väljaminev dokument | ta | OÜ Fund Ehitus |
| Kiri | 01.12.2025 | 1 | 9.3-1/24/4301-12 | Sissetulev dokument | ta | OÜ Fund Ehitus |
| Kiri | 18.11.2025 | 1 | 9.3-1/24/4301-11 | Sissetulev dokument | ta | OÜ Fund Ehitus |
| Vastuskiri | 09.05.2025 | 3 | 9.3-1/24/4301-10 | Väljaminev dokument | ta | OÜ Fund Ehitus |
| Taotlus | 25.04.2025 | 3 | 9.3-1/24/4301-9 | Sissetulev dokument | ta | OÜ Fund Ehitus |
| Kiri | 16.04.2025 | 1 | 9.3-1/24/4301-8 | Väljaminev dokument | ta | Tallinna Linnaplaneerimise Amet |
| Vastuskiri | 20.03.2025 | 1 | 9.3-1/24/4301-7 | Sissetulev dokument | ta | Tallinna Linnaplaneerimise Amet |
| Kiri | 21.02.2025 | 3 | 9.3-1/24/4301-6 | Väljaminev dokument | ta | OÜ Fund Ehitus |
| Taotlus | 13.02.2025 | 1 | 9.3-1/24/4301-5 | Sissetulev dokument | ta | OÜ Fund Ehitus |
| Kiri | 14.10.2024 | 1 | 9.3-1/24/4301-4 | Väljaminev dokument | ta | Tallinna Linnaplaneerimise Amet |
| Edastuskiri | 16.09.2024 | 1 | 9.3-1/24/4301-3 🔒 | Sissetulev dokument | ta | Tallinna Linnaplaneerimise Amet |
| Kiri | 16.05.2024 | 1 | 9.3-1/24/4301-2 | Väljaminev dokument | ta | Linnaplaneerimise Amet |