| Dokumendiregister | Terviseamet |
| Viit | 9.3-1/24/4301-19 |
| Registreeritud | 12.02.2026 |
| Sünkroonitud | 13.02.2026 |
| Liik | Väljaminev dokument |
| Funktsioon | 9.3 Teenuste terviseohutus |
| Sari | 9.3-1 Ehitusprojekti või detailplaneeringu terviseohutuse hinnangud või kooskõlastused |
| Toimik | 9.3-1/2024 |
| Juurdepääsupiirang | Avalik |
| Juurdepääsupiirang | |
| Adressaat | OÜ Fund Ehitus |
| Saabumis/saatmisviis | OÜ Fund Ehitus |
| Vastutaja | Karmen Põld (TA, Peadirektori asetäitja (2) vastutusvaldkond, Põhja regionaalosakond) |
| Originaal | Ava uues aknas |
From: Karmen Põld
Sent: Thu, 12 Feb 2026 14:04:25 +0000
To: 'Oliver Tarik' <[email protected]>
Subject: Vs: Järveotsa 1c detailplaneering
Tere
Detailplaneeringu seletuskirjas/põhijoonisel tuleks võimalikult täpselt kirjeldada, mida planeeritakse maa-alale, kus päevasel ajavahemikul on müratase kõrgem (tumepunane). Juhul, kui sellisele maa-alale tekitatakse ala, kus pidevalt viibitakse (näiteks terrassid), ei ole Terviseametil võimalik taolist lahendust kooskõlastada.
Lugupidamisega
Karmen Põld
vaneminspektor (keskkonnatervis)
Põhja regionaalosakond
+372 5484 0193
| Terviseamet +372 794 3500 [email protected] Paldiski mnt 81, 10614 Tallinn |
Käesolev kiri on mõeldud ainult kirja adressaatidele. Kui olete saanud kirja ekslikult, palun teavitage koheselt selle saatjat ning kustutage saadud kiri koos kõikide lisadega. NB! Juurdepääsupiirangu märkega dokumentide avaldamine kõrvalistele isikutele on keelatud.
Saatja: Oliver Tarik <[email protected]>
Saatmisaeg: neljapäev, 5. veebruar 2026 10:24
Adressaat: Karmen Põld <[email protected]>
Teema: RE: Järveotsa 1c detailplaneering
Tähelepanu! Tegemist on väljastpoolt asutust saabunud kirjaga. Tundmatu saatja korral palume linke ja faile mitte avada. |
Tere,
Kortermaja plaanid ja lahendused pole küll paigas, aga hetkeseis on seesugune:
Viidatud tumepunasele alale jäävad praeguste plaanide kohaselt:
Kui saan kuidagi veel abiks olla selgituste andmisel, siis andke märku.
Skeemilahendus hoone uuest paiknemisest:

From: Karmen Põld <[email protected]>
Sent: kolmapäev, 4. veebruar 2026 15:54
To: Oliver Tarik <[email protected]>
Subject: Vs: Järveotsa 1c detailplaneering
Tere
Kas oleks võimalik kirjeldada, mida on täpsemalt kavandatud sinisega ümbritsetud alasse, kus on kõrgemad müratasemed? Lisaks paluksin informatsiooni, kas on paigas, kuhu on planeeritud rõdud ning terrassid? Kas ka esimesele korrusele on plaanis terrasse rajada ning kui jah, siis millistele külgedele?

Lugupidamisega
Karmen Põld
vaneminspektor (keskkonnatervis)
Põhja regionaalosakond
+372 5484 0193
| Terviseamet +372 794 3500 [email protected] Paldiski mnt 81, 10614 Tallinn |
Käesolev kiri on mõeldud ainult kirja adressaatidele. Kui olete saanud kirja ekslikult, palun teavitage koheselt selle saatjat ning kustutage saadud kiri koos kõikide lisadega. NB! Juurdepääsupiirangu märkega dokumentide avaldamine kõrvalistele isikutele on keelatud.
Saatja: Oliver Tarik <[email protected]>
Saatmisaeg: reede, 30. jaanuar 2026 10:06
Adressaat: Karmen Põld <[email protected]>
Teema: RE: Järveotsa 1c detailplaneering
Tähelepanu! Tegemist on väljastpoolt asutust saabunud kirjaga. Tundmatu saatja korral palume linke ja faile mitte avada. |
Tere,
Edastan uuendatud müra modelleerimise.
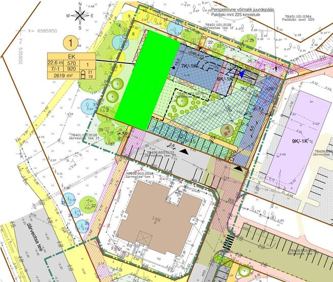
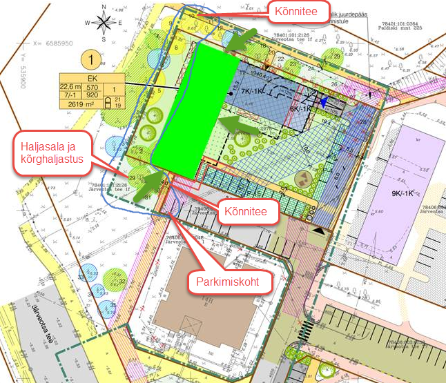
Krundi piiri ja hoone vahele oleme planeerinud teha haljasala. Lisaks on meil tarvis tagada jalakäijate vaba läbipääs kinnistult. Seega peame nii lõuna- kui põhjaküljele planeerima kõnniteed, mis tagavad vajalikud läbipääsud.
Kinnistu idapoolsesse osasse (hoone varju jääv osa) planeerime alad, kus elanikud saavad veeta oma vaba aega (mänguväljak, istumispingid jms).
Eelduslik eskiis on allpool.

From: Karmen Põld <[email protected]>
Sent: reede, 9. jaanuar 2026 16:14
To: Oliver Tarik <[email protected]>
Subject: Vs: Järveotsa 1c detailplaneering
Tere
Selleks, et oleks võimalik öelda, kas antud lahendus oleks sobilik ning saaks Terviseameti poolt kooskõlastuse, tuleks antud lahenduse osas koostada müra modelleerimine. Modelleerimise põhjal on Terviseametil võimalik öelda, kas antud lahendus võiks sobida. Lisaks oleks abiks see, kui kirjeldate, mis täpsemalt on planeeritud alale, mis jääb krundi piiri ning planeeritava hoone vahele ning hoone külgedele.
Lugupidamisega
Karmen Põld
vaneminspektor (keskkonnatervis)
Põhja regionaalosakond
+372 5484 0193
| Terviseamet +372 794 3500 [email protected] Paldiski mnt 81, 10614 Tallinn |
Käesolev kiri on mõeldud ainult kirja adressaatidele. Kui olete saanud kirja ekslikult, palun teavitage koheselt selle saatjat ning kustutage saadud kiri koos kõikide lisadega. NB! Juurdepääsupiirangu märkega dokumentide avaldamine kõrvalistele isikutele on keelatud.
Saatja: Oliver Tarik <[email protected]>
Saatmisaeg: reede, 2. jaanuar 2026 11:49
Adressaat: Karmen Põld <[email protected]>
Teema: RE: Järveotsa 1c detailplaneering
Tähelepanu! Tegemist on väljastpoolt asutust saabunud kirjaga. Tundmatu saatja korral palume linke ja faile mitte avada. |
Tere,
Tänud selgituste eest.
Saime informatsiooni TLPA-st, et Järveotsa 1c detailplaneeringu teemat arutati 17.12.25 toimunud koosolekul.
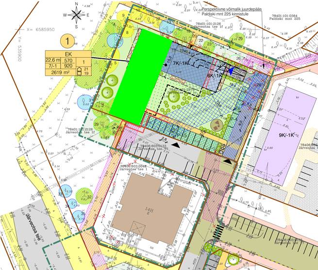
Koosolekul lepiti kokku, et üks võimalik lahendus oleks maja asukoha muutmine selliselt, et maja blokeeriks liiklusmüra ja sisehoovis oleks seetõttu väiksem müratase. Skeem on allpool, kus on rohelisega näidatud hoone uus võimalik asukoht.
Kas seesugune lahendus oleks Terviseametile sobilik ja võime lahendused ümber projekteerida?
Kuna muudatus nõuab aega ja raha, siis soovime ennetavalt teada, milline on Teie/Terviseameti arvamus alloleva lahenduse osas?

From: Karmen Põld <[email protected]>
Sent: kolmapäev, 10. detsember 2025 14:50
To: Oliver Tarik <[email protected]>
Subject: Vs: Järveotsa 1c detailplaneering
Tere
Nagu ka varasemalt olen selgitanud, kehtib piirväärtuse puhul maa-alale üks normtase ning hoone teepoolsel välispiirdel (fassaadil) teine. Antud juhul on maa-alal lubatud müratase päeval 60 dB ning hoone teepoolsel küljel 65 dB. Taolist lähenemist toetab ka keskkonnaministri 16.12.2016 määruse nr 71 „Välisõhus leviva müra normtasemed ja mürataseme mõõtmise, määramise ja hindamise meetodid“ seletuskiri, kus kirjutatakse : "Seega eri huvide ja õiguste tasakaalustamiseks on mõistlik sarnaselt määrusele nr 42 kehtestada ka edaspidi teealaga piirnevatel kinnistutel hoonete teepoolsel välispiirdel (fassaadil) leebemad normtasemed kui kinnistu teistel aladel.".
Lugupidamisega
Karmen Põld
vaneminspektor (keskkonnatervis)
Põhja regionaalosakond
+372 5484 0193
| Terviseamet +372 794 3500 [email protected] Paldiski mnt 81, 10614 Tallinn |
Käesolev kiri on mõeldud ainult kirja adressaatidele. Kui olete saanud kirja ekslikult, palun teavitage koheselt selle saatjat ning kustutage saadud kiri koos kõikide lisadega. NB! Juurdepääsupiirangu märkega dokumentide avaldamine kõrvalistele isikutele on keelatud.
Saatja: Oliver Tarik <[email protected]>
Saatmisaeg: neljapäev, 4. detsember 2025 15:33
Adressaat: Karmen Põld <[email protected]>
Teema: RE: Järveotsa 1c detailplaneering
Tähelepanu! Tegemist on väljastpoolt asutust saabunud kirjaga. Tundmatu saatja korral palume linke ja faile mitte avada. |
Tere,
Tänud tagasiside eest.
Meil jääb siiski selgusetuks, millise müranõude vastu me eksinud oleme? Varasemast kirjavahetusest saime aru, et viitate maa-alal levivale liiklusmürale, mis ületab 60dB.
KeM määruse nr 71 Lisa 1 tabeli kohaselt on liiklusmüra piirväärtus päeval teepoolsel küljel 65dB. Seda piirmäära me antud juhul ei ületa. Liiklusmüra tase 60dB või rohkem on Paldiski mnt ja Järveotsa tee poolsetel külgedel.
From: Karmen Põld <[email protected]>
Sent: kolmapäev, 3. detsember 2025 16:12
To: Oliver Tarik <[email protected]>
Subject: Vs: Järveotsa 1c detailplaneering
Tere
Terviseamet võtab oma kooskõlastuse andmisel aluseks detailplaneeringu materjalide koosseisus esitatud mürahinnangu. Toote oma kirjas välja: „Manuses oleva mürakaardi nr. 1-1 (lk 18) kohaselt tumepunase ala arvutuslik liiklusmüra tase 60dB või rohkem. Kuna 60dB on lubatud piirmäär, siis võib mürakaarti tõlgendada ka seaduse silmis sobilikuks olevaks (mh. võttes arvesse ka allpool kirjeldatud kõrghaljastuse punkti). Seega täidame ära ka KeM määruse nr 71 Lisa 1 tabeli kohase nõrgema piirmäära“. Me ei ole antud tõlgendusega nõus, eriti arvestades, et fassaadideni jõuavad müratasemed, mis on suuremad kui 60 dB.
Viitate, et planeeringuala asub olemasolevate elamute ning lasteaia kõrval ning seetõttu on see ala elamu ehitamiseks sobilik. See ei saa olla põhjenduseks uute elanike toomisel mürarikkasse keskkonda.
Kõrghaljastus ei pruugi olla müra leevendamise seisukohalt tõhus, näiteks võib see sõltuda ka aastaajast. Kindlasti vajaks müra leevendamise meetmed täiendavaid modelleerimisi, et näha nende tõhusust planeeritavale alale.
Terviseamet jääb oma varasema seisukoha juurde ning ei kooskõlasta planeeringu praegust lahendust.
Lugupidamisega
Karmen Põld
vaneminspektor (keskkonnatervis)
Põhja regionaalosakond
+372 5484 0193
| Terviseamet +372 794 3500 [email protected] Paldiski mnt 81, 10614 Tallinn |
Käesolev kiri on mõeldud ainult kirja adressaatidele. Kui olete saanud kirja ekslikult, palun teavitage koheselt selle saatjat ning kustutage saadud kiri koos kõikide lisadega. NB! Juurdepääsupiirangu märkega dokumentide avaldamine kõrvalistele isikutele on keelatud.
Saatja: Oliver Tarik <[email protected]>
Saatmisaeg: teisipäev, 18. november 2025 13:53
Adressaat: Karmen Põld <[email protected]>
Teema: RE: Järveotsa 1c detailplaneering
Tähelepanu! Tegemist on väljastpoolt asutust saabunud kirjaga. Tundmatu saatja korral palume linke ja faile mitte avada. |
Tere,
Oleme Järveosa 1c detailplaneeringu Terviseameti märkust menetlenud ja soovime täpsustada teie esitatud märkust (manuses) ja viimast e-kirja (vt. allpool). Meie järeldused olukorrast on allpool ja palume tagasisidet, kas oleme korrektselt aru saanud:

i. 
ii. 
From: Karmen Põld <[email protected]>
Sent: reede, 9. mai 2025 15:47
To: Oliver Tarik <[email protected]>
Subject: Vs: Järveotsa 1c detailplaneering
Tere
Selgitan, et detailplaneeringu maa-alal, kuhu kavandatakse elamu, on ületatud keskkonnaministri 16.12.2016 määruses nr 71 „Välisõhus leviva müra normtasemed ja mürataseme mõõtmise, määramise ja hindamise meetodid“ (edaspidi KeM määrus nr 71) lisas 1 toodud II kategooria liiklusmüra piirväärtused. Täpsustan, et KeM määrus nr 71 lisas 1 toodud normtasemed kehtivad maa-alal (välisõhus), mitte ainult hoone fassaadil. Müra piirväärtus on atmosfääriõhu kaitse seaduse kohaselt suurim lubatud müratase, mille ületamine põhjustab olulist keskkonnahäiringut ja mille ületamisel tuleb rakendada müra vähendamise abinõusid. Seega tuleks detailplaneeringuga lahendada müratasemete küsimus ja leida viis, milliste meetmetega tagada müra normtasemete vastavus maa-alal. Terviseamet saab koostöö raames hinnata Teie pakutud lahendusi detailplaneeringu alal leviva müra vähendamiseks.
Lugupidamisega
Karmen Põld
vaneminspektor (keskkonnatervis)
põhja regionaalosakond
+372 5484 0193
| Terviseamet +372 794 3500 [email protected] Paldiski mnt 81, 10614 Tallinn |
Käesolev kiri on mõeldud ainult kirja adressaatidele. Kui olete saanud kirja ekslikult, palun teavitage koheselt selle saatjat ning kustutage saadud kiri koos kõikide lisadega. NB! Juurdepääsupiirangu märkega dokumentide avaldamine kõrvalistele isikutele on keelatud.
Saatja: Oliver Tarik <[email protected]>
Saatmisaeg: reede, 25. aprill 2025 14:40
Adressaat: Karmen Põld <[email protected]>
Teema: Järveotsa 1c detailplaneering
Tähelepanu! Tegemist on väljastpoolt asutust saabunud kirjaga. Tundmatu saatja korral palume linke ja faile mitte avada. |
Tere,
Olen Oliver Tarik OÜ Fund Ehitusest ja tegelen Järveotsa 1c detailplaneeringuga (DP045840). Täname Teid arvamuse eest.
Oleme varasemalt sama teemaga konsulteerinud Terviseametist Liis Korp`iga. Minule teadaolevalt tema enam Terviseametis ei tööta, seega loodame Teiega olukorrale lõpliku lahenduse leida. Ma usun, et koostöös on meil võimalik leida mõlemale osapoolele sobilik lahendus.
Kuna meil on soov selle kinnistu detailplaneeringuga operatiivselt edasi liikuda, siis teen ettepaneku antud teemat arutada TPRi väliselt ja e-kirja teel. Loodan, et ettepanek on sobilik.
Manuses on ka meie kirjavahetus Liis Korp`iga sel teemal. Me arutlesime, kuidas võiksime detailplaneeringus müra leevendusmeetmeid selliselt sõnastada, et see hilisemas projekteerimise staadiumis ka õnnestunult projekteeritaks ning ellu viidaks. Koostöös K-Projektiga võtsime ette sarnased projektid ja panime kokku seletuskirja sõnastuse, mis võiks olla sobilik. Muuhulgas tegime järgnevad muudatused dokumentides:
Kas Teil oleks võimalik anda oma hinnang, kas meie tehtud muudatused on sobilikud?
Võime lahendusi arutada ka näiteks telefoni teel või Teams rakenduse kaudu.
P.S. Kuna antud hoone arendajaks ja ehitajaks on Fund Ehitus, siis ei ole muuhulgas ka ohtu, et müra leevendamise meetmete info kuskile kaduma läheks.
Kõike paremat!
Oliver Tarik
OÜ Fund Ehitus
Kinnisvara arendusjuht
Mob. 56 40 265
| Nimi | K.p. | Δ | Viit | Tüüp | Org | Osapooled |
|---|---|---|---|---|---|---|
| Vastuskiri | 30.01.2026 | 3 | 9.3-1/24/4301-18 | Sissetulev dokument | ta | OÜ Fund Ehitus |
| Vastuskiri | 09.01.2026 | 3 | 9.3-1/24/4301-17 | Väljaminev dokument | ta | OÜ Fund Ehitus |
| Vastuskiri | 02.01.2026 | 3 | 9.3-1/24/4301-16 | Sissetulev dokument | ta | OÜ Fund Ehitus |
| Vastuskiri | 10.12.2025 | 1 | 9.3-1/24/4301-15 | Väljaminev dokument | ta | OÜ Fund Ehitus |
| Vastuskiri | 08.12.2025 | 1 | 9.3-1/24/4301-14 | Sissetulev dokument | ta | OÜ Fund Ehitus |
| Vastuskiri | 03.12.2025 | 1 | 9.3-1/24/4301-13 | Väljaminev dokument | ta | OÜ Fund Ehitus |
| Kiri | 01.12.2025 | 1 | 9.3-1/24/4301-12 | Sissetulev dokument | ta | OÜ Fund Ehitus |
| Kiri | 18.11.2025 | 1 | 9.3-1/24/4301-11 | Sissetulev dokument | ta | OÜ Fund Ehitus |
| Vastuskiri | 09.05.2025 | 3 | 9.3-1/24/4301-10 | Väljaminev dokument | ta | OÜ Fund Ehitus |
| Taotlus | 25.04.2025 | 3 | 9.3-1/24/4301-9 | Sissetulev dokument | ta | OÜ Fund Ehitus |
| Kiri | 16.04.2025 | 1 | 9.3-1/24/4301-8 | Väljaminev dokument | ta | Tallinna Linnaplaneerimise Amet |
| Vastuskiri | 20.03.2025 | 1 | 9.3-1/24/4301-7 | Sissetulev dokument | ta | Tallinna Linnaplaneerimise Amet |
| Kiri | 21.02.2025 | 3 | 9.3-1/24/4301-6 | Väljaminev dokument | ta | OÜ Fund Ehitus |
| Taotlus | 13.02.2025 | 1 | 9.3-1/24/4301-5 | Sissetulev dokument | ta | OÜ Fund Ehitus |
| Kiri | 14.10.2024 | 1 | 9.3-1/24/4301-4 | Väljaminev dokument | ta | Tallinna Linnaplaneerimise Amet |
| Edastuskiri | 16.09.2024 | 1 | 9.3-1/24/4301-3 🔒 | Sissetulev dokument | ta | Tallinna Linnaplaneerimise Amet |
| Kiri | 16.05.2024 | 1 | 9.3-1/24/4301-2 | Väljaminev dokument | ta | Linnaplaneerimise Amet |